元和观村党群服务中心
项目名称:元和观村党群服务中心
设计团队:LUO studio │罗宇杰工作室(www.luostudio.cn)
设计人(建筑、室内、景观):罗宇杰、 魏文景
业主:武当山特区元和观村委会
施工方: 湖北裕峰建筑工程有限公司
监理方:十堰宏超建设工程监理有限责任公司
项目地址:中国湖北省十堰市丹江口市武当山特区元和观村
建筑面积: 545.9㎡
建筑摄影师:金伟琦
设计时间:2019年10月05日
施工开始时间:2019年10月07日
竣工时间:2019年12月6日
接续生长——元和观村党群服务中心
缘起
武当山特区在积极推动民宿经济,并对景区周边进行风貌治理。元和观村紧邻景区入口,被选为优先试点的村落,原村委会聚落要被规划改造成民宿接待示范区,村委会的新建、腾挪,成了迫切要做的工作,为了保障村民服务,如何快速建成显得至关重要。
通过对村落整体调研、综合考量,建议将紧临干道、弃建已久的一处宅地征用做新村委会,此地因某项目开发曾被征用,后该项目又因缘废止已搁置五六年至今,宅地上建存有地面基座和首层结构柱,若在此基础上进行续建可极大的节省时间。废弃宅地紧邻两条重要的街道交叉口,街道办及村两委也特别同意重新征用改造起来,并希冀借此重塑街道风貌并带动荒废的村西片区。
建构逻辑:混凝土基柱上的木造接续
留存至今的基座、首层柱阵情况:基础施工荷载是基于原计划要建设约三四层高的混凝土框架结构房屋(当地普遍的沿街建筑类型),地梁基础上铺设了一层预制混凝土板,板地面距人行道地坪抬高了1m左右(当地普遍做法),柱子距板地面高为3.2m,柱顶预留有后浇钢筋,可进行钢构件焊接。经过现场勘察,这些遗留的混凝土基柱虽裸露多年,结构的性能还是满足续建条件的,从相对稳妥的角度,考虑续建原则是:原有结构不进行任何破坏、改动,上部增建荷载应尽量小,要以有效的措施使得新建与旧有建设形成合力。
综合研判后,选择采取木结构接续建造办法,这样上部的荷载相对其他备选材料(混凝土、砌块砖、生土墙、钢材)来说更小,并可以通过装配建造的办法,相对更快速的建设完成,从建造文脉上来看,木造也相对更符合武当山地域气质。
接续建造基于如下三个阶段:
1. 增补首层木柱、理顺轴网
遗留的混凝土柱阵是无序的混乱状态:南北有三跨,轴间距尺寸依次为:5.75m、2m、6.5m;东西向(北侧)柱跨有4.15m、4.25m两种间隔轴跨,东西向(南侧)柱跨则出现了2.6m、3.5m、3.6m三种间隔轴跨,这样导致了南北向(中侧)2m柱跨的柱子东西向毫无规律。续建的木质结构和混凝土性能是截然不同的,原混凝土柱阵相对于木结构是有缺失的,在(中侧)2m柱跨上进行必要的柱子增加,弥补木梁杆件跨度上的不足,也梳理了柱跨上南北侧的无规律对应,再通过木横梁与新柱阵的连接,完成了非常重要的混凝土柱基与木结构的首层融合。
2. 向上生长结构
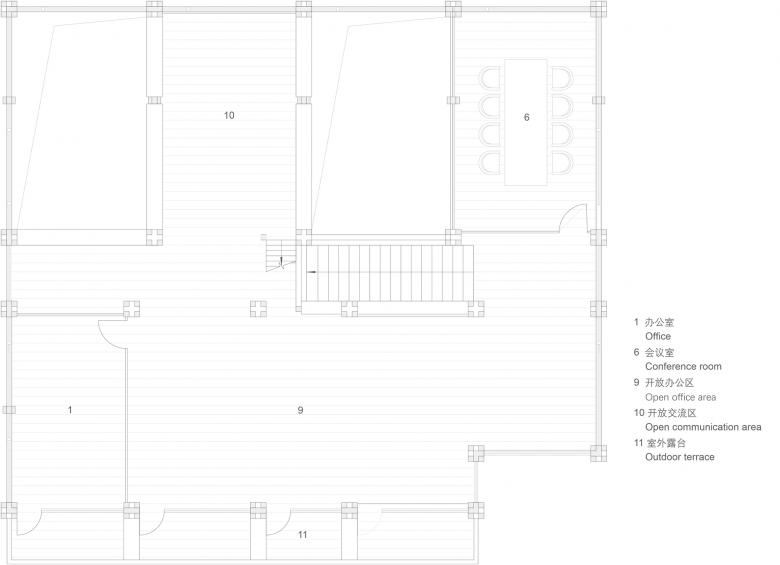
在首层梁柱的结构上接续向上生长,混凝土柱的截面尺寸是450mm*450mm,相对木料是非常大的截面,通过三等分的方式,以150mm*150mm截面的四根木柱分置四角,形成“集束柱”,这样也便于结构梁与柱的穿插衔接。将中间2m跨梁柱密集的结构强度大区域,整体抬升做屋脊,也设为天顶采光带,缓解建筑南北柱跨总进深15米的采光压力。屋脊往南北两侧设坡,北侧临街是入口,出挑做长,形成宽大屋檐区,回应武当山特有的官式建筑语境;南侧设出挑露台,可观远山、道观及主村落。
3. 填充水平、垂直分隔及外围护面
结构主体完成后,进行外部围合、内部空间分隔、楼层板填置。基地周围被建筑群包裹,为了防止干扰,一层外围护墙体主要采用砌体墙封闭,以青砖与玻璃砖匀质混砌的办法,保障一定的光线;二层有不错的观景,以落地玻璃窗为主。内部空间以中间跨为界进行南北分隔,北区为公共开放区,南区为办公、大会议区,中间2m柱跨限定和强化出相对狭小、适宜的服务性空间:垂直交通、盥洗空间。为了保障北侧办事服务大厅采光,二层楼地板的北侧中部空置,使得顶光可以渗透下来;夹层由于高度的限制,主要在中间区设楼层地板,以放置资料、物品为主。
极速建造措施
由于民宿区建设的快速推进,村委会的腾挪要求在很短的两个月时间内(设计和室内、外施工)完成,这给了设计方、施工方很大的难题。采取了三个措施:1,设计&施工统筹安排:时间很短,设计和施工几乎是同时开始,根据施工先后秩序绘制图纸(以获得最高效的图纸供给),设计师全程驻场陪伴建设,能够在现场交代清楚的环节就简化图纸绘制工作,现场出现疑问即时解答不延误施工。2,装配式施工原则:可选择工厂定制的材料就不在现场加工,提前备好后序施工进程中所需要的材料,现场以安装、装配工作为主。3,尽可能杜绝非标准件:尽管现状混凝土柱阵无规律,通过各种手段梳理,让后续建设尽量统一结构杆件、构造件、门窗等尺寸规格,用工业型材尺寸反推设计、编排,减少材料的切割消耗。
通过这些有效措施,尽管还赶上武当山地区的多雨气候,最终在两个月的时间内完成了所有设计、施工、室内布置,由于时间短暂,也留下了遗憾,有些构造可以更精准一些,考虑到快速建造原则将规格统一概略了。
营造开放的社区建筑
外部场所营造:村里老人居多,为了方便大家,主入口区设置坡道。在西侧有巷道的区域,结合外露混凝土柱和青砖墙的凹凸关系,夹接设置木制长椅,村民忙歇时可闲坐休憩,这里也是将要设置宣传告示栏的区域,提供停靠商议的便利。
内部空间处理:室内以共享、开放为原则,打破村委会常规以封闭式房间为主的布局,除了必要的会议区、财务间封闭外,只加设了两间封闭备用房间,其它区域都设为开放式,结合设置了很多便利的休息坐区、阅读区、交流区空间。
乡村的公共建筑很少,各种资源非常宝贵,通过这次建设,希望不单满足村委会办公的需要,也可以提供给村民更社区化、更开放的空间环境,去构建更亲和的人际交往、社群关系。
- Jahr
- 2019











































