Chinesische Nationalbibliothek

Peking, China
Foto © Hans Schlupp

Die Chinesische Nationalbibliothek in Peking ist die drittgrößte Bibliothek der Welt und bietet Platz für 12 Millionen Bücher. Das Bauwerk wurde im Jahr 2008 nach einer Bauzeit von rund vier Jahren offiziell eröffnet. Der Entwurf von KSP Jürgen Engel Architekten, der im Jahr 2003 siegreich aus einem internationalen Wettbewerb hervor ging, integriert die Sammlung historischer Schriften – die sogenannte „Si Ku Quan Shu“ – in einem modernen Bibliotheksneubau. Zudem beherbergt der Neubau auch eine „Digitale Bibliothek“ für neue Medien.

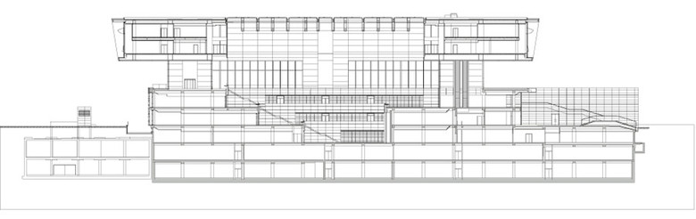
Die heterogene Stadtlandschaft von Peking verlangte nach einer klaren Grundform. Der Entwurf für die Chinesische Nationalbibliothek greift daher in einer zeitgenössischen Interpretation Elemente der traditionellen chinesischen Architektur auf. Sockel, Säulenordnung und ein schwebendes Dach sind in der chinesischen Baugeschichte stilistische Elemente, die den bedeutenden, meist öffentlichen Bauten vorbehalten waren. Der Neubau verknüpft somit architektonisch als auch inhaltlich Vergangenheit, Gegenwart und Zukunft.

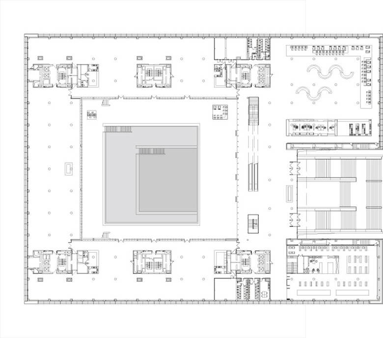
Die Dreiteilung des 27 Meter hohen Bibliotheksneubaus war auch aus funktionalen Gründen sinnvoll. Die Basis bildet ein Sockelgebäude, das die alte Bücher- und Schriftensammlung beherbergt. Es steht sinnbildlich für die reiche Tradition der chinesischen Kultur. Der verglaste Raum zwischen Sockel und Dach steht für die Gegenwart. Hier befindet sich der öffentliche Bereich mit Foyer, Cafeteria und dem Zugang zum Lesesaal. Den oberen Abschluss bildet die Stahlkonstruktion des Daches, welche den großen Lesesaal stützenfrei überspannt. Die Spannweite dieser Stahlrahmenkonstruktion beträgt rund 60 Meter. Die Dachkonstruktion mit Abmessungen von 120 auf 105 Metern und einer Höhe von 10 Metern beherbergt auf zwei Ebenen die „Digitale Bibliothek“.

Der mehrgeschossige Lesesaal mit ca. 2000 Plätzen stellt das Zentrum der neuen Bibliothek dar. Er wird durch das gläserne Dach von oben natürlich belichtet. Von den Lese- und Arbeitsplätzen, die sich um den zentralen Lichthof gruppieren, ist der massive Würfel aus weißem Marmor zu sehen, der die „Vollständigen Bibliothek der vier Büchergattungen“ („Si Ku Quan Shu“) aufbewahrt. Sie umfasst mehr als 36.000 vormoderne Texte und ist von unschätzbarem historischem Wert. Alt und Neu, Tradition und Innovation stehen sich in den verschiedenen Gebäudeteilen der Chinesischen Nationalbibliothek gegenüber und sind zugleich harmonisch miteinander verbunden.

BGF
80.000 m²

Fertigstellung
07/2008

Foto © Hans Schlupp
Foto © Hans Schlupp
Foto © Hans Schlupp
Foto © Hans Schlupp
Foto © Hans Schlupp
Zeichnung © KSP ENGEL
Foto © Hans Schlupp
Foto © Hans Schlupp
Zeichnung © KSP ENGEL
Zeichnung © KSP ENGEL
Zeichnung © KSP ENGEL
Jahr
2008
Bauherrschaft
National Library of China

Andere Projekte von KSP ENGEL 

Deutsche Bank Campus
Frankfurt am Main, Deutschland
Daimler Headquarters
Stuttgart, Deutschland
OP Zentrum Nord - Klinikum Rechts der Isar
München, Deutschland
Hammerbrook Höfe
Hamburg, Deutschland
Kunstmuseum
Tianjin, China