He Duoling Studio
He Duoling Studio
Site: Xipu, Chengdu, Sichuan
Client: HE Duoling
Designer: LIU Jiakun (co-worker: QING Lirong)
Design/Completion: 1995-1996
Structure: Brick and reinforced concrete mixed structure
Size: 450 square meters
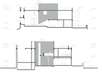
The Studio for He Duoling is basically shaped like a cube, similar to an ancient Chinese seal, with a simple exterior and a complicated interior. The blind facade, the protective thick wall, and the slight crevices, all these above reinforce the architectural theme. The windows, - one within the other -, emphasize the interior hierarchy, and make the landscape outside a picture. The narrow crevices are designed to set off the darkness inside rather than emphasizing the brightness outside. Lighting largely comes from the sky above. The architecture is not designed for the communication of the views, but for the inducement of sight from inside to outside.
Corresponding to the enclosure, a rising path surrounds the patio, and makes a sharp turn when the perspective is about to close. Here, at an abrupt sight of the patio, a flying corridor tilts over the space, and turns back into the room from which it comes. With the changing of viewing angles, the labyrinthic space and route becomes clear, and further one’s actual location is learnt. This corridor that leads viewers to identify their state of mind is the very key of the whole architecture. As an abruptly interfering element, it breaks the stable and rigorous cube and brings in a whole brand-new feeling wherever it arrives. The Chinese Chan Stories are just like this: they always start with a mild depiction to lead us naturally step by step, and make a sudden change to let people understand in an abnormal mood.
Another key to the architecture is the patio in the core. Different from the patio in traditional residences, this patio does not function to take in lighting. The four sides of the patio are almost all blind, and are raised up deliberately, formulating the principal body outward, and reinforcing the empty inward. This patio is designed to demonstrate the existence of space and oriental spirituals. In this ‘patio of heaven’, people are likely to be more sensitive to the sky which is usually ignored, to the sunlight at the top of the wall, as well as to the projection of the flying corridor.
The He Duoling Studio adopts brick and reinforced concrete mixed structure. The quality of the bricks is low, but I did not intend to make excessive demands for its quality. Just like the attitude towards the craftsmanship of the local construction group, I just regard them as a local product. This architecture is designed according to the construction codes of brick and reinforced concrete mixed structure. But it’s somewhat like a concrete architecture for some high space and crossbeams. As the theme of this project is to probe the spatial expressive ability of brick and reinforced concrete mixed structure rather than the expression of construction methods. Therefore the exterior and interior walls are both treated by the local methods, adopting plaster and paint, and in this way simplifying the whole problem.
- Jahr
- 1996













