Stoffdruckatelier Mag. S. Kallinger

Pasettistraße 71, Wien, Österreich
© Rupert Steiner

Als Künstler kann man von einer solchen Arbeitssituation
nur träumen, wie sie jetzt im Pförtnerhaus der ehemaligen
Eisfabrik in Wien-Donaustadt herrscht. Das kleine Haus
mit seinem Sichtziegel-Mauerwerk und der kantigen
Ornamentik der Fassade sieht dabei ganz unwienerisch
aus: 1925 / 26 von Silvio Mohr und Ferdinand
Fuchsik erbaut, erinnert es fast ein wenig an den
tschechischen Kubismus. Hans Peter Petri ließ diesen
Bestand auch weitgehend unangetastet, das
Mauerwerk wurde saniert, die Fenster blieben bestehen,
viel mehr wurde an der Substanz nicht
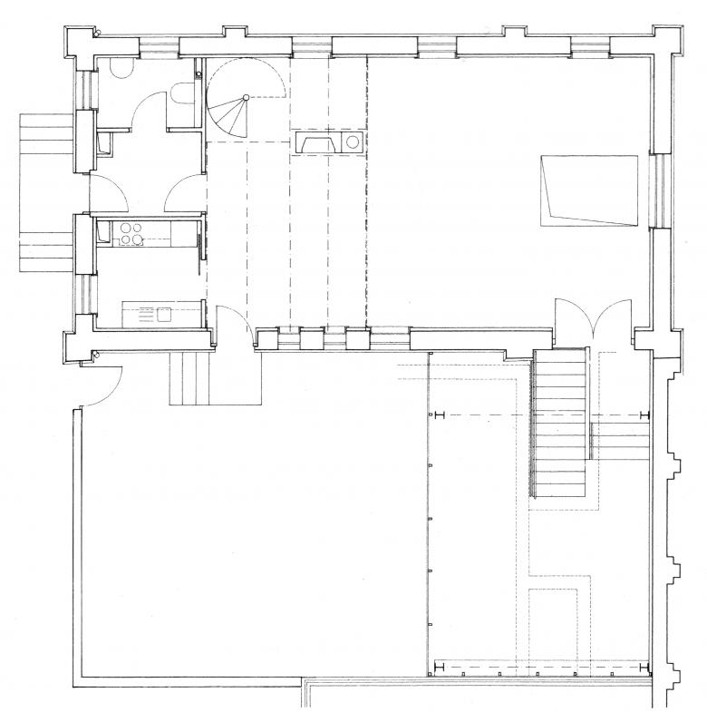
gemacht. Man kommt nun in das Haus hinein,
passiert einen kleinen Windfang, rechts geht es zu
einer Küche, links wurde eine Stiege ins neu eingezogene
Galeriegeschoß eingebaut; vor sich hat
man den großen, hohen, vom nutzlos gewordenen
Dachstuhl befreiten Hauptraum.
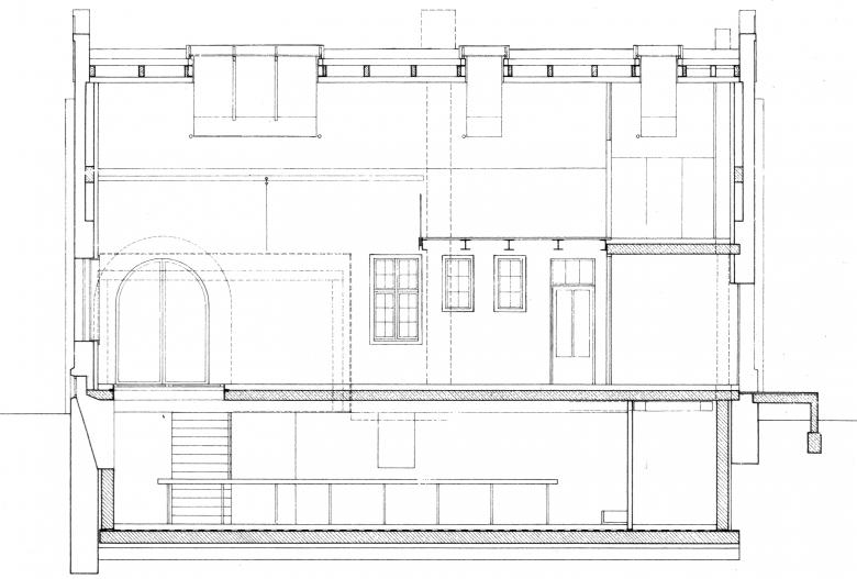
Dieser Hauptraum erhält nun, zusätzlich zu den Fenstern
des Bestandes, auch von oben Licht.
Relativ nah an der Stirnwand des Raumes fällt
außerdem eine große, in den Fußboden eingelassene
Glasscheibe auf, die den Blick nach unten, in
den Kellerraum des Untergeschoßes freigibt. Das
Haus war ursprünglich nur im vorderen Teil unterkellert,
ein wesentlicher Teil des jetzigen Arbeitsraumes
der Künstlerin wurde also erst ausgegraben. In diesem
Raum steht nun ein Siebdrucktisch von recht
gewaltigen Ausmaßen.
Mittels eines einfachen Motors und eines Seils
kann sie angehoben werden, so dass die frisch
bedruckten Stoffbahnen über diese "Durchreiche"
in den Präsentationsraum zu ebener Erde transportiert
werden können. Wenn man den Blick nach
oben, zum Licht gleiten lässt, dann fällt hier auch
noch eine zweite Besonderheit auf; dort sind quer
durch den Raum verschiebbare Metallstangen
gespannt, auf denen sich die Stoffbahnen variabel,
dabei optisch sehr effektvoll präsentieren lassen.
Sogar eigene, beliebig verschieb- und verstellbare
kleine Beleuchtungswägen wurden für diese Präsentationen
entwickelt, die einfach in den zahlreich
vorhandenen Bodensteckdosen angesteckt werden
können.
Dem historischen Bauwerk angefügt wurde ein Wintergarten,
den Hans Peter Petri gerne als Ganzglas Konstruktion
ausgeführt hätte. Möglicherweise
wäre das tatsächlich die elegantere Lösung gewesen,
weil sich damit die zeitgenössische Intervention von
der "Massivität" der Substanz reizvoll abgehoben
hätte. Auf besonderen Wunsch der Bauherrin ist
das nun nicht geschehen, sie gab einem Betonquader
mit Glasfront - der ein kleiner Garten vorgelagert
ist - den Vorzug.
Im Zugangsbereich zum Wintergarten war übrigens
auch die einzige Möglichkeit, den Treppenabgang
in den Arbeitsraum zu platzieren. Das Areal der
Eisfabrik wurde ja insgesamt revitalisiert und durch eine
Neubebauung verdichtet (Wohnen und Gewerbeflächen),
und in diesem Zusammenhang musste
auch eine Tiefgarage gebaut werden. Zwischen
dieser Tiefgarage und dem Arbeitsraum der Künstlerin
blieb gerade noch ein ganz schmaler Zwickel für die
Stiege übrig. Für den Hauptraum hat diese Auslagerung
der Treppe allerdings viel gebracht, weil er dadurch
von störenden Nebenfunktionen freigespielt
ist.
Nur die eingeschobene Galerie des Obergeschoßes
trotzt dem Bestand ein Mehr an Nutzfläche ab.
Er wird in Verbindung mit einem Badezimmer als
Schlafraum genutzt, obwohl er zum Hauptraum hin
sehr offen ist. Allerdings scheint das für eine Stoffdruckkünstlerin
das geringste Problem: Im Zweifels·
fall schottet sie sich einfach durch Schichten langer
Stoffbahnen ab.
Petri hat sich bei diesem Umbau auf eine Materialsprache
bezogen, I -Träger, Riffelblech. Betonböden,
teilweise Sichtbeton im Wintergarten – welche die Sprache der
historischen Industriearchitektur unmittelbar
weiterführt, wenn auch mit unleugbar zeitgemäßen
Mitteln.

Liesbeth Wächter Böhm für Architektur Aktuell

© Rupert Steiner
© Rupert Steiner
© Rupert Steiner
© Rupert Steiner
© Rupert Steiner
© Rupert Steiner
© Rupert Steiner
© Rupert Steiner
© Rupert Steiner
© Rupert Steiner
Jahr
1998
Project Status
Gebaut

Andere Projekte von Hans Peter Petri 

Kunstraum Innsbruck
Innsbruck, Österreich
Haus Dr. Gruber, 1994
Umbau Innenraum Haus S
Absam, Österreich
Schuhhaus Wunderl
Sollenau, Österreich
Wettbewerb EXPO 1995 Wien, 1989