Visa Section Swiss Embassy
The concept is to "see the history through the decade". We convinced the client to keep the old brick building, which witnessed the accelerated pace of change in China; and extended it with a lightweight glass facade, through which the inside bricks still can be seen.
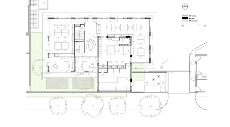
The existing building contents as today the waiting area for visitors, the counters and the offices of the Visa section. The extension contents additiional offices, a small meeting room, a server room and toilets. An air lock and a canopy will be added to the visitors’ entrance. The roof of the extension will be planted (extensive lawn system). For energy saving reasons floor and roof will be well insulated. Low-e glazing will be used in facade. A floor heating, ceiling cooling system with ventilation for fresh air meet a high quality of comfort. The existing pavilion and his extension will be fully supplied by the existing technical installations in the basement of the chancellery.
The existing pavilion and his extension will be fully supplied by the existing technical installations in the basement of the chancellery. Two kinds of architecture are overlapped in across time.Bamboo is used as exterior and interior material to indicate the context -China. Both Chinese and Swiss visitors, will sense a familiar impression.
Constructed Area
420 sqm
Client
BBL Swiss Bund
- Jahr
- 2009







