Erweiterung Schulanlage Gutenbrunnen
Erweiterung bestehendes Primarschulhaus um Klassenzimmer und 2-fach Turnhalle /.
Das Schulhaus Gutenbrunnen liegt am südlichen Dorfrand am Übergang von Siedlungs- und Landschaftsraum in topografisch anspruchsvoller, nach Norden abfallender Hanglage. Das Schulhaus Gutenbrunnen soll um vier Primarschulklassen, drei Kindergärten und eine Doppelturnhalle Typ B mit den erforderlichen Nebenräumen und Freiflächen erweitert werden; der Altbau soll neben dieser Erweiterung möglichst integral erhalten werden. Mit der aus dem Hang aufragenden Halle und dem darüber gesetzten Schulhaus geben die Bestandsbauten die bauliche Fassung der Topographie vor. Zu ihren Füssen breiten sich die grossflächigen Sportfelder in die weite Ebene nach Norden aus. Die Erweiterung soll neben dem Schulbetrieb auch das Angebot für den Sport, für die übrigen Vereine und das Dorf vergrössern.
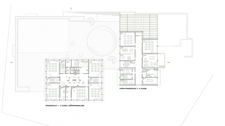
Die Erweiterung dehnt das vorhandene Hallendach mit Schulhof zum grossflächigen „Schul-Plateau“ in die Landschaft aus, aus dem heraus altes und neues Schulhaus aufragen. Der künstliche Sockel nimmt mit den Sporthallen, Foyers und Zuschauerbereichen, Mehrzwecksaal und Bibliothek die öffentlichen Nutzungen auf und verbindet Alt- und Neubau über einen zentralen Hof auf Ebene UG1. Sein grosser, kreisrunder Deckenausschnitt verbindet ihn mit der Erdgeschoss-Ebene des nun über beide Gebäudeteile hinweg erweiterten Schulhofs mit Allwetterplatz auf dem Dach der neuen Turnhalle. Oberhalb des befestigen Pausenplatz-Horizonts stehen das alte Schulhaus der 5. + 6. Klassen und das neue Schulhaus mit den Kindergärten im EG und den Primarschulklassen 1 - 4 im OG als eigenständige Gebäude nebeneinander, umgeben von den umlaufend ausgestalteten Pausenplatz- und Grünanlagen der Schulnutzung.
Die Schulanlage Gutenbrunnen wird durch ihre Gelände- und Gebäudeterrassen charakterisiert, deren jeweilige Nutzung mit der Erweiterung klar adressiert wird: Oben die Schule, unten die Sportfelder und dazwischen das Sockelgeschoss, in dem sich altes und neues Sporthallen-Foyer auf den gemeinsamen Hof öffnen, über den die drei Geländeterrassen miteinander verbunden sind. Mit dem kreisrunden Dachrand und dem Schwung der Sitzstufen prägnant eingefasst, zeichnet dieses „Forum“ zwischen Bestand und Erweiterung die neue offene Mitte des kleinen Campus‘ aus.
Direkt am zentralen Hof liegen das neue Foyer, die Bibliothek und der Mehrzwecksaal, sowie die Zuschauergalerie der Turnhalle gegen Westen, alle mit attraktiver Überhöhen zwischen 3.5 … 3.8 Metern i.L. Der Kindergarten mit drei Gruppen liegt im Erdgeschoss des Neubaus und wird exklusiv über den eigenen übersichtlich gestalteten Aussenraum von Süden erschlossen. Das Schulzimmer für die Psychomotorik im EG bildet eine Schnittmenge zur Primarschule, kann aber auch dank seiner Lage direkt am Treppenhaus als Jokerraum, oder auch für eine vierte Kindergartengruppe genutzt werden. Die zusätzlichen Klassenräume (1.-4. Klasse) der Primarschule bilden im 1.OG des Neubaus ein zeitgemässes Unterrichtscluster mit zweiseitig orientierten Klassenzimmern, direkt benachbarten Gruppenräumen und einer attraktiven, zenital belichteten Multizone. Im EG und 1.OG des Bestands bilden die Werk- und Handarbeitsräume mit Nebenräumen nun eine kompakt organisierte Nutzungseinheit. Die beiden Obergeschosse werden als reine Unterrichtsgeschosse für die 5.+ 6. Klassen ausgebildet. Hier ist auch der Lehrpersonenbereich mit den Büros der Schulleitung angeordnet.
Für eine nächste Etappe zur Erweiterung der Schulräume bietet sich an, das neue Schulhaus analog zum bestehenden Schulhaus ebenfalls um ein Dachgeschoss vollflächig aufzustocken. Durch die Verteilung der Nutzungen und die Disposition von vertikaler Erschliessung und Sanitärzonen ist der konfliktfreie Gebrauch durch verschiedene Nutzer möglich. Die Erweiterung schreibt dazu die schon im Bestand angelegte Schichtung des Raumprogramms fort: Sporthalle, Zuschauerfoyer, Mehrzwecksaal mit Küche und auch die Bibliothek im neuen „Sockelbau“ sind unabhängig vom Schulbetrieb zu nutzen. Durch die Konzentration der Kindergärten im EG des Neubaus sind die Werkräume im UG und EG des Altbaus nun ebenfalls unabhängig vom Schulbetrieb erschlossen und nutzbar … eine „öffentliche“ Zone läuft unterhalb der Schulhäuser durch und kann unabhängig von deren Tagesablauf betrieben werden.
- Jahr
- 2022 (Projektwettbewerb nach Präqualifikation)
- Bauherrschaft
- Gemeinde Schübelbach
- Team
- Büning-Pfaue Kartmann Architekten. Basel in Arbeitsgemeinschaft mit Bienert Kintat Architekten. Zürich, Heinrich Landschaftsarchitektur GmbH. Winterthur






