Parkpalette
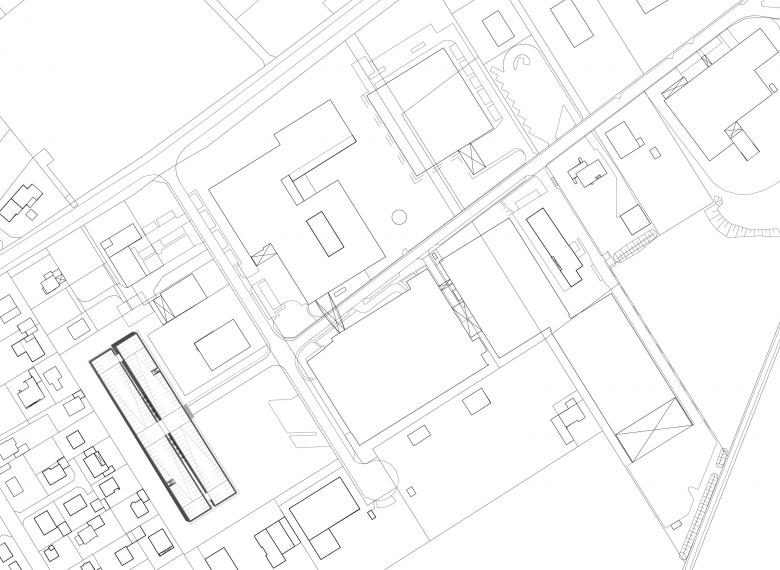
An der westlichen Grenze des Firmengrundstückes, mit Abstand zum Vertriebs-Center haben wir das neue, in zwei gleich große Teile gegliederte Parkhaus mit insgesamt 500 Stellplätzen für die Mitarbeiterinnen von Ernsting's family platziert. Das Ensemble bestehender Firmengebäude wird durch das neue, lineare Bauwerk vollendet, es schließt den Campus zum benachbarten Wohngebiet hin ab. Die Form des zweiteiligen Baukörpers ergibt sich durch ein System von doppelgängigen Parkrampen. Die beiden identischen, spiegelsymmetrischen Gebäudeteile ergänzen sich im Inneren zu einer Kreisfahrt, außen verschränken sich die Körper zur Gesamtfigur. Die gewonnene Freifläche zwischen Vertriebs-Center und dem Parkhaus wird mit Graskissen und Bäumen gestaltet und in den Firmencampus integriert.
Das System der doppelgängigen Parkrampen bietet eine optimale Flächenausnutzung. Die Überwindung der Geschosshöhen erfolgt auf 3.2 % geneigten Parkstraßen. Dadurch werden keine zusätzlichen Auf- und Abfahrtselemente wie etwa Spindeln oder Rampen benötigt. Die Neigung der Parkrampen ergibt sich aus der Baukörperlänge von 127 Meter und der für ein Parkhaus großzügigen Geschosshöhe von 3.06 Meter. Die im Schnitt x-förmig angeordneten Rampen ermöglichen getrennte Zu- und Abfahrten und sorgen außerdem für den schnellen Abfluss der geparkten Autos, durch die Möglichkeit des Rampenwechsels an den Kreuzungspunkten. Eine Holzfassade verleiht dem Parkhaus seine natürliche Erscheinung und von innen wie von außen einen freundlichen sowie hellen Charakter. Die „Gartenzaun-Fassade“ ist der ideale Vermittler zwischen dem Wohngebiet auf der einen und dem Industriegebiet auf der anderen Seite. Die äußere Hülle erscheint je nach Blinkwinkel transparent oder geschlossen, verbergend oder preisgebend; sie stärkt den monolithischen Charakter der sich verschränkenden Baukörper, ermöglicht aber gleichzeitig eine natürliche Belichtung und Belüftung.
- Jahr
- 2007
- Bauherrschaft
- Ernsting‘s Bau & Grund GmbH
- Wettbewerb
- 2004, 1. Preis











