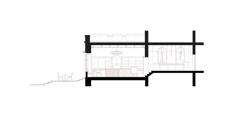
Umbau Cafe + Beck Buchmann Oberstrass

Universitätstrasse 7, 8006 Zürich, Schweiz
Foto © Lucas Peters

Umbau, denkmalgeschütztes Gebäude
Direktauftrag
Planung / Ausführung 2017-2018
Bauherrschaft Walter Buchmann AG

Architekten
Christof Bhend
Barbara Schlauri
Daniel Friedmann
Bettina Gerhold
Carlos Cuadrado
Cynthia Gilli

Fotos
Lucas Peters

Foto © Lucas Peters
Foto © Lucas Peters
Foto © Lucas Peters
Jahr
2018

Andere Projekte von Bhend & Schlauri Architekten ETH SIA 

Pflegezentrum «in der Au»
Volketswil, Schweiz
Aufstockung Einfamilienhaus
Neubau Bundesasylzentrum in Altstätten, SG
Umbau Café und Bäckerei Kornsilo in der Mühle Tiefenbrunnen, Zürich
Zürich, Schweiz