Verwaltungsgebäude der Fa. Höller
Bewertung der Jury unter dem Vorsitz von Gion Caminada Sept 2007:
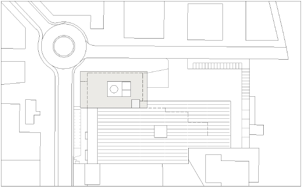
Der Entwurf reagiert in souveräner Weise auf die besondere Situation. Das Fehlen attraktiver Räume (innen und außen) ist in der Regel ein Kennzeichen peripherer Gewerbegebiete.
Das großzügige um einen Innenhof arrangierte neue Ensemble lässt diesen Mangel vergessen.
Die zentrale Raumabfolge – ein Innenhof in Verbindung mit einer zweigeschossigen Ausstellungshalle – enthält ein hohes Potenzial, die Kompetenz der Firma Höller „ .... vollendet Räume“ zu demonstrieren....
Die Struktur des Bauwerks ist großzügig, klar und bietet mühelos Orientierung. Die Erschließung ist nicht nur stringent, sondern auch abwechslungsreich. Niemals entsteht der Eindruck der Beengtheit.
Das weit ausladende Vordach schafft eine Übergangszone zwischen Innen und Außen, die in diesem eher von hermetischen Fassaden geprägten Gewerbequartier eine überraschende Bereicherung darstellt. Eine einladende Geste, die dem offenen Geist des Unternehmens entspricht.
Die bestehenden Silos der Tischlerei werden auf sehr selbstverständliche Weise in das Konzept miteinbezogen und erhalten überraschende Präsenz.
- Jahr
- 2014
- Statik
- DI Andreas Gaisberger, Dornbirn







