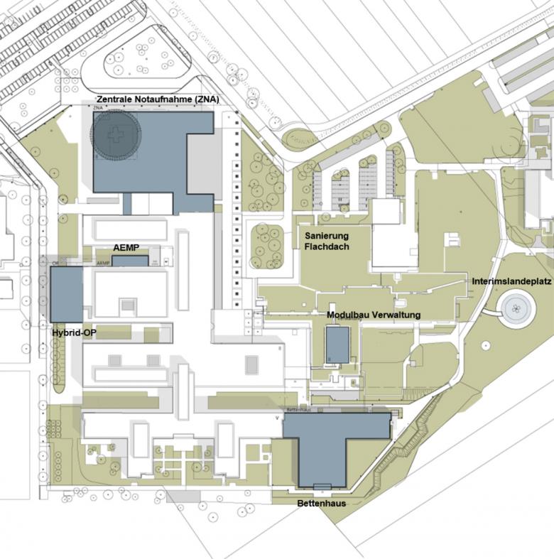
Zentrale Notaufnahme (ZNA) medius Klinik
Der Neubau der Notaufnahme integriert auf einer Ebene die Funktionsbereiche der
Zentralen Notfallversorgung, einer Kurzliegereinheit, einem CT und einem Röntgenraum, sowie einer Notfallpraxis.
Der Zugang für Patienten befindet sich an der Ostseite des Gebäudes, wo am gemeinsamen Empfangstresen in die Notfallpraxis und die Notaufnahme verteilt wird. An diesen Bereich gliedern sich funktional die Triage sowie die Untersuchungs- und Behandlungsräume an, die sich an der Ost- und Nordfront erstrecken, während die KV-Praxis im Südteil angeordnet ist.
Zentral im Gebäude angeordnet ist der Stützpunkt, der als Schaltzentrale der ZNA,
den schnellen interdisziplinären Austausch ermöglicht und durch die zentrale Lage auf kurzen Wegen für die Mitarbeiter erreichbar ist.
Vom Rettungshubschrauber gelangt man über den Aufzug vom 2. OG direkt an die
Notfallspange.
Der Übergang zum Bestandsgebäude erfolgt über den Erweiterungsbau für das Patienten-Service-Center.
Die Notaufnahme wurde als Generalplanerleistung für die arabzadeh+schneider planungsgesellschaft erbracht.
- Jahr
- 2025
- Project Status
- Gebaut
- Bauherrschaft
- medius KLINIKEN gGmbh Charlottenstr. 10 73230 Kirchheim unter Teck







