Projektwettbewerb Zentrum Friesenberg

Zürich, Switzerland

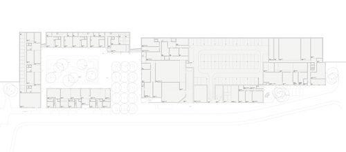
Das neue Zentrum am Friesenberg ist die Schweighof-Terrasse, ein grosser, zum Tal offener Platz. Er ist flankiert von zwei stattlichen Gebäuden, die im Dreiklang mit der bestehenden Kirche den eigentlichen Schwerpunkt des Quartiers bilden. Die Terrasse ist Treffpunkt und Identität zugleich. Sie gibt den für den Friesenberg neuen öffentlichen Blick frei hinunter auf die Binz, die Innenstadt und hinüber zum Zürichberg. Das Gegenstück zur Schweighof-Terrasse ist der intimere Baumplatz an der Arbentalstrasse. An ihm vorbei führen eine Rampe und eine direkte Treppenanlage hinauf zur Bushaltestelle und weiter zur Schule und den Sportanlagen. Angegliedert an den Baumplatz ist der Wohnhof mit Wohnateliers, Kindergarten, Hort und Gemeinschaftsraum. Das neue Zentrum wird von drei Gebäuden gebildet, die jeweils spezifische, auch städtebauliche Funktionen übernehmen und deren Fassadengestaltungen differieren.

Die drei neuen Gebäude sind präzise in die bestehende Situation gesetzt. Das FGZ-Gebäude, dicht an die Kreuzung Schweighofstrasse Borrweg gestellt, übernimmt eine wichtige städtebauliche Funktion. Es bildet einen direkten Bezug zu den beiden Kirchen und der über der Strasse gelegenen Apotheke. Mit einer dreiseitig angeordneten Arkade schafft es auch die Verbindung zwischen dem Borrweg und der neunen Schweighof-Terrasse, und dabei die Möglichkeit, das Zentrum Friesenberg zu einem späteren Zeitpunkt im Norden zu erweitern. Im FGZ-Gebäude sind die Regiebetriebe wie auch die Geschäftsstelle der Genossenschaft untergebracht, welche im darüber liegenden 1. Obergeschoss erweitert werden kann. Nebenan, auf Platzniveau, besetzt das Restaurant mit Saal die Ecke zur Schweighofstrasse. Das gut besonnte Gartenrestaurant ist attraktiv und schafft zusätzliche Öffentlichkeit.

Das Zusammenstellen von verwandten Nutzungen in den drei Gebäuden sowie das Stapeln von gleichen Einheiten und das Nutzen von Synergien sind Beiträge zur kostenbewussten Realisierung und einen optimierten Betrieb. Die Konstruktion der drei Gebäude ist identisch, in ihrem Ausdruck jedoch differenziert. Die Fassaden sind aus tragenden Außenwand-Holzbauelementen erstellt. Ihre äuserste Fassadenschicht ist mit Klinkerriemchen verkleidet, während die vom Klinker gefassten, gestrichenen Holzfassadenteile die dahinter liegende Holzkonstruktion andeutet. Je nach Bedeutung und Funktion von Gebäude und Fassaden werden nun die beiden Materialien Klinker und Holz verschieden eingesetzt und variiert. Bei den Platzfassaden wird die Vertikale betont und über den Arkaden eine mehrere Geschosse umfassende Ordnung geschaffen, während die Fassaden des Wohnungsbaus horizontal gegliedert sind.

Any
2012

Altres projectes per Zach + Zünd 

Ausstellung Masterpieces - Meisterwerke der Natur, Zoologisches und Paläontologisches Museum der Universität Zürich
Zürich
Kollegiengebäude II Stabilisierende Massnahmen und Neues Naturmuseum
Zürich, Switzerland
Gesamtsanierung Florastrasse 52
Zürich, Switzerland
Wohnüberbauung Hagen Süd West
Illnau, Switzerland
Wohnüberbauung Weierstrasse
Rüti, Switzerland