Projektwettbewerb Schulanlage Blumenfeld

Zürich-Affoltern, Switzerland

Mittendrin – Dem neuen Wohngebiet Ruggächer in Zürich Affoltern fehlt ein Zentrum. Die Schulanlage als Ort des Austausches und der Orientierung soll diese Zentrumsfunktion für das neue Quartier übernehmen. Sie spannt ein Feld mit Aussen – und Innenräumen auf, das intensiv begangen und belebt werden kann. Als dichte Lernlandschaft auf mehreren Niveaus tritt sie der unbestimmten Leere des Umfelds entgegen und bietet ein Angebot über die Schulzeiten hinaus an. Die Schule wird zum öffentlichen Ort.

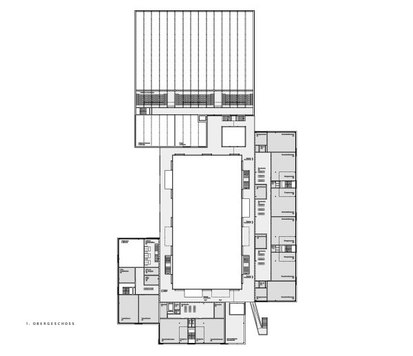
Das Zentrum der Schule und des Quartiers ist der grosse Hof. Grosszügige Lauben, offen erschlossen, lassen die beiden Obergeschosse wie Erdgeschosse erscheinen und machen die Anlage zur Pavillonschule auf Etagen. Das erste Obergeschoss ist die Welt der Grundschule. Jeweils zwei Spiel- / Klassenräume bilden zusammen ein „Haus“ und damit eine überschaubare, familiäre Einheit. Öffenbare Fassadenfronten schaffen eine intensive Beziehung zum Aussenraum der Lauben.

In der Primarschule im 2.OG bilden jeweils 3 Klassenzimmer einen Cluster. Der gemeinsame gut belichtete Erschliessungsraum wird zum Lern – und Aufenthaltsraum mit direktem Aussenbezug auf die Lauben, die zu Unterrichtsräumen im Freien werden.

ARGE
Thomas Schregenberger / Zach + Zünd Architekten
mit Schmid Landschaftsarchitekten

Any
2010

Altres projectes per Zach + Zünd 

Ausstellung Masterpieces - Meisterwerke der Natur, Zoologisches und Paläontologisches Museum der Universität Zürich
Zürich
Kollegiengebäude II Stabilisierende Massnahmen und Neues Naturmuseum
Zürich, Switzerland
Gesamtsanierung Florastrasse 52
Zürich, Switzerland
Wohnüberbauung Hagen Süd West
Illnau, Switzerland
Wohnüberbauung Weierstrasse
Rüti, Switzerland