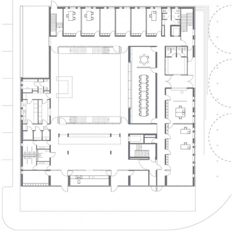
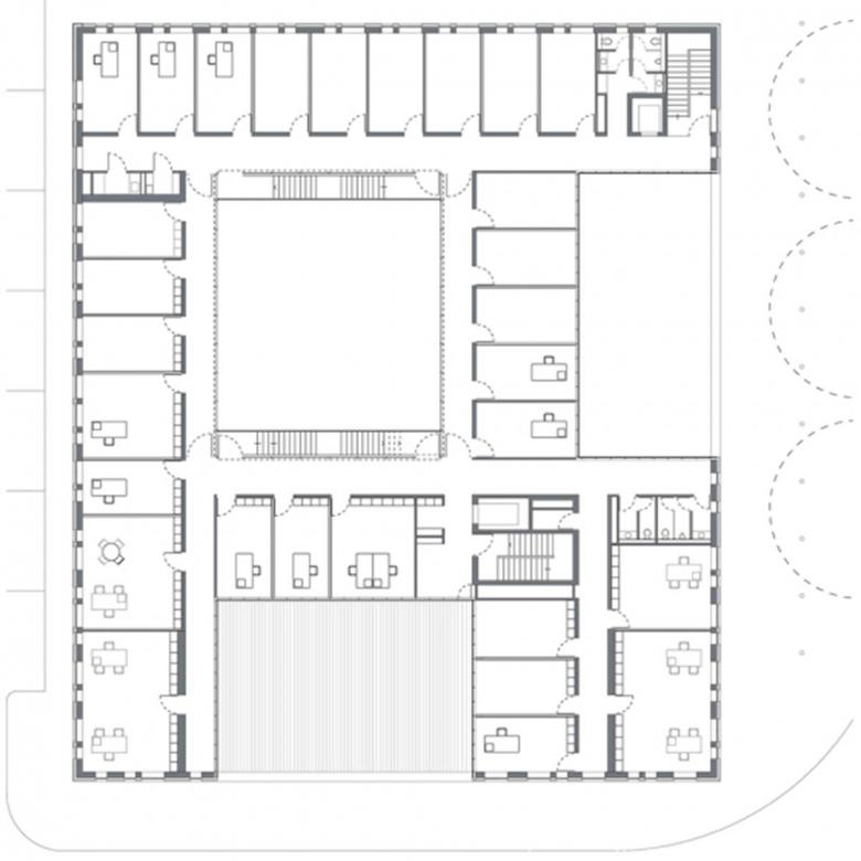
Justizzentrum, Oberlandesgericht und Polizeipräsidium
Der 5-geschossige Baukörper wird durch plastische Einschnitte, das Wegnehmen einzelner Volumen aus einem Quader, gegliedert. Es entsteht ein gleichwertiger Stadtkörper in der Reihe von Amts- und Landgericht, der die Maßstäblichkeit des angrenzenden Johannesviertels respektiert. Das 'Herz' und Orientierungspunkt des Gebäudes bildet die lichtdurchflutete zentrale Halle, und interpretiert so das Thema der Erschließungshalle im alten Amtsgericht neu.
- Any
- 2009
- Project Status
- Construït
- Client
- Land Hessen endvertreten durch das hbm Hessem RNL Süd
- Leistungsphasen
- 1 - 4, Leitdetails, künstlerische Oberleitung
- Auszeichnung
- 2013, BDA Hessen, Joseph-Maria-Olbrich-Plakette

















