Parkanlage Tannhof
Gartendenkmalpflegerisches Gutachten
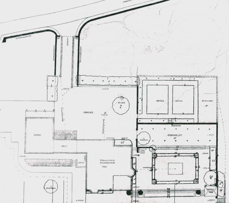
Der Architekturgarten sowie die Gebäude, das Gartenhaus sind im Inventar der Baudenkmäler als Kulturgüter von regionaler Bedeutung erfasst und seit 1993 unter Schutz gestellt. Die dazu gehörigen Grundstücke unterliegen zudem dem bäuerlichen Bodenrecht (BGBB). Da die Liegenschaft veräussert werden soll, wurde ein Gutachten erstellt, um die genaue Grösse der Parkanlage, den Schutzwert und den Perimeter, der aus dem bäuerlichen Bodenrecht freigestellt werden kann, zu ermitteln. Das heutige Landgutes Villa R. setzt sich aus zwei ursprünglich eigenständigen Parkanlagen zusammen: Dem Anwesen der Mme. Thénard, einem spätklassizistischen Landschaftsgarten von Theodor Froebel aus der Zeit vor 1870 und dem Architekturgarten zur Villa von Ernst Klingelfuss im Südosten des Gebäudes , dessen Erweiterung von Adolf Vivell und der Obstwiese im Osten von 1913/14. Zusammengefügt wurden die beiden Teile in den 1930er Jahren durch Alfred und Susanna Reinhart und den Gebrüder Mertens. Diese erstellen Pläne für einen Naturpark. Ein Felsengarten und die rote Betonauffahrt setzen Akzente. Die heute noch reichhaltige Anlage spiegelt die Geschichte der Schweizer Landschaftsarchitektur Mitte des 19. Jahrhunderts bis Mitte 20. Jahrhundert wieder.
- Any
- 2017
