Bürgerzentrum Frankfurter Hof

Cretschmarstrasse 6, 65843 Sulzbach Taunus, Germany
Fotografia © TTP

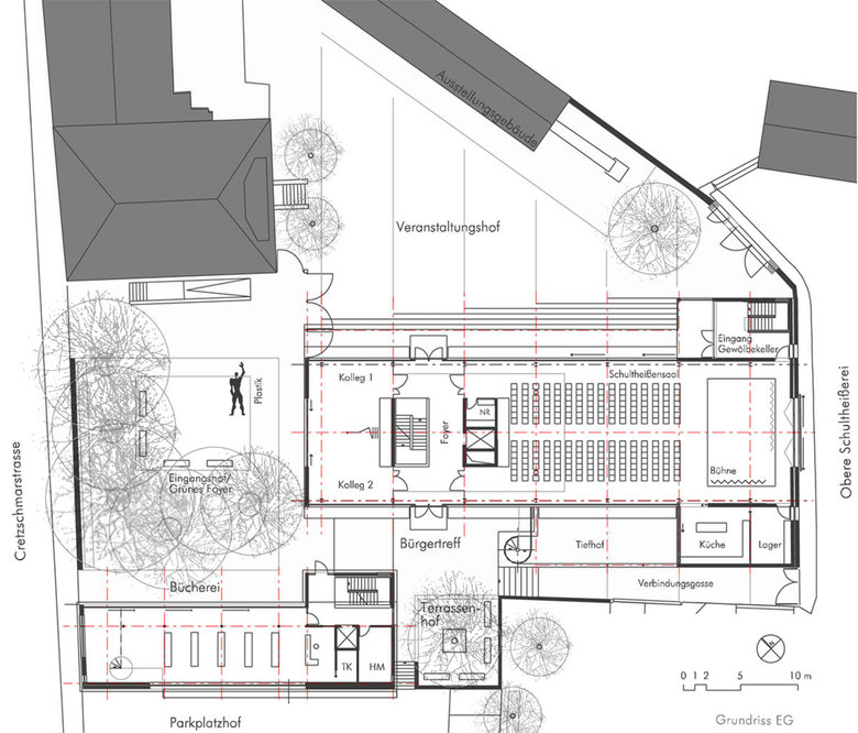
Planungsaufgabe war, den Frankfurter Hof, ehemals Schultheisserei, Poststation und Gaststätte, als denkmalgeschützte und größte Hofreite der Gemeinde zu einem Bürgerzentrum umzubauen.

In den Konturen der baufälligen Zehntscheune entstand mit großem Saal, Gruppenräumen und Jugendkeller das neue zentrale Veranstaltungsgebäude, das sich zum Wirtschaftshof öffnet und diesen als Außen- und Festraum einbezieht.

Umgeben von historischem Herrenhaus, Saalbau und schlankem Bibliotheksneubau erhält der platanenbestandene Eingangshof seine räumliche Fassung und wird zum grünen Foyer der Gesamtanlage.

Realisierungswettbewerb
1991, ein 1.Preis

Wettbewerbsbeauftragung
TTN

Aufgabe
Bürgerzentrum und Bücherei ‘Frankfurter Hof’

Baukosten
Eur 6,5 Mio.

LPH
1-9

Realisierung
2002-03

Auftraggeber
Gemeinde Sulzbach Ts., Der Gemeindevorstand

Fotografia © TTP
Fotografia © TTP
Fotografia © TTP
Dibuix © TTP
Any
2003
Equip
Klaus Trojan, Verena Trojan, Volker IHm, Harald Neu
Statiker
Bollinger&Grohmann

Altres projectes per Trojan + Trojan 

Leibniz - Universität Hannover - Entwicklungsstudie Zentrale Bereich und Östlicher Welfengarten
Hannover, Germany
Umfeld Hauptbahnhof Nord
Dortmund, Germany
Entwicklung der Wiesbadenbrücke - Haveninsel
Wilhelmshaven, Germany
Ingolstadt Schlosslände und Donauufer
Ingolstadt, Germany
Klaus Trojan
Dresden, Germany