The Shijingshan district is located between Beijing city centre and the Western Hills, beyond the fifth ring road. The surrounding urban area is bounded to the northwest by mountains, which during Imperial China contributed to the good FengShui situation of the capital. The vast plane between the mountains and the historic city has long since been filled by the massive urban growth of recent years.
In Zhu Pei’s interpretation, this human activity is like a thin layer over the silhouette of the mountains. With reference to the silhouette, he cuts an open balcony into the opaque but visually solid spatial volume of the Cultural Centre. This runs horizontally through the building on the second and third levels, and at its centre widens out above the staircase as an organizing funnel to ventilate and illuminate into the core of the building. The partly organic-shaped open areas expand to form a continuous balcony around the auditorium volume.
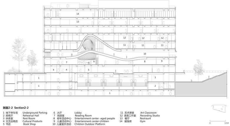
The building site has the shape of an unequal triangle tapering off to the southwest-an unusual situation in the grid city of Beijing. Cinemas and a car park are located underground, while on the ground floor are the lobby, the auditorium with stage, commercial areas for shops and at the south-western tip, a sunken plaza opening via a staircase to the street level. On the levels above the character-forming horizontal incision are a sports hall, a restaurant, an art school and recording studios. The glass facade is shaded with vertical aluminuium louvers mounted at irregular spacings. The Cultural Centre unites these various functions as one 'urban' block, which due to its form and materiality stands out in the neighbourhood.
Shijingshan Cultural Center
Torna enrere a la llista de projectes- Localització
- Beijing, China
- Any
- 2015
- Client
- 北京市石景山区文化委员会
- Equip
- 何帆,韩默,Edwin,由昌臣,吴志刚,刘伶,Shuhei Nakamura,柯军
- Structural Consultant
- Professor Fu Xueyi, Master of National Engineering Survey and Design
- MEP Consultant
- BIAD JAMA CO., LTD.












