桜木幼稚園
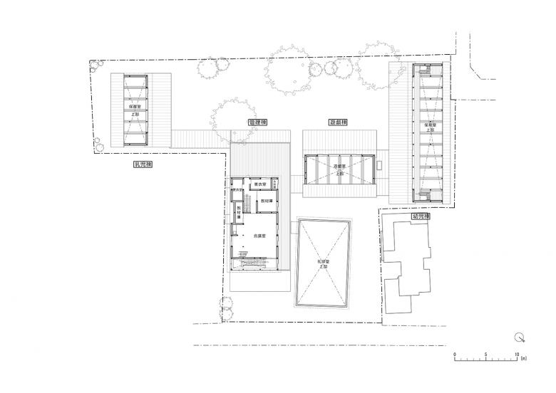
百余年の歴史ある教会付属幼稚園の改築計画。
教えに集中できるシンプルな形の保育室を、遊びの仕掛けを施した廊下で繋ぐことにより、多様な学びにあふれた園舎となることを意図した。高窓から桜の風景を取り込んでいた旧園舎の構成を踏襲し、W.M.ヴォーリズ設計による旧牧師館の階段を再利用することにより、これまでの愛着含めた歴史を継承していくことを期待している。
設計:稲荷明彦建築研究室+多和良屋
構造設計:宮坂建築設計事務所
設備設計:山崎設備設計
施工:トーケン
- Any
- 2018
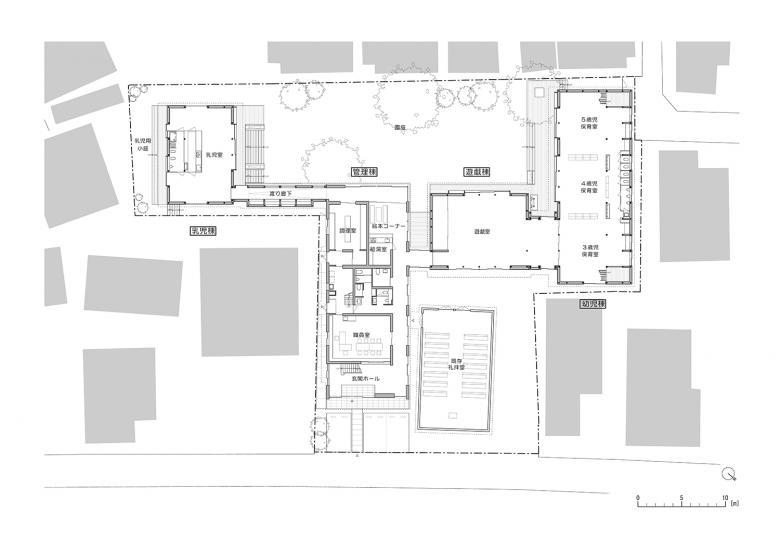
百余年の歴史ある教会付属幼稚園の改築計画。
教えに集中できるシンプルな形の保育室を、遊びの仕掛けを施した廊下で繋ぐことにより、多様な学びにあふれた園舎となることを意図した。高窓から桜の風景を取り込んでいた旧園舎の構成を踏襲し、W.M.ヴォーリズ設計による旧牧師館の階段を再利用することにより、これまでの愛着含めた歴史を継承していくことを期待している。
設計:稲荷明彦建築研究室+多和良屋
構造設計:宮坂建築設計事務所
設備設計:山崎設備設計
施工:トーケン