Banu Restaurant
The Banu Restaurant design project includes the replacement of the interiors and façade of a 2,100-m2 building in Zhengzhou China. As the Flagship restaurant for a growing and innovative franchise, it was important to the client that the project create a recognizable landmark along the main axis road, and that it be welcoming to the community.
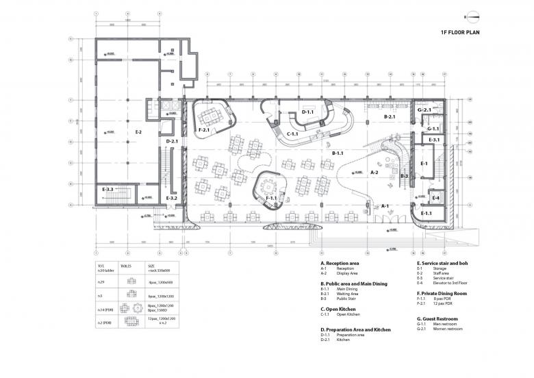
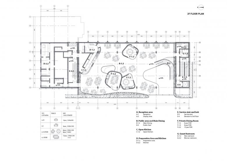
The design sought to honor Banu, the riverman’s history, by creating a space formed from a natural, yet turbulent flow, marked by the sinuous lines of rope pull lattices. The design first breaks down the large-scale, and orthogonal structural grid of the existing building, reframing the space into a fluid organization system with a series of sculptural cones shaped for private dining and open kitchens. Additionally, two vertical conical voids are introduced at the lobby and the main seating area to tie two dining levels together. A third strategy involved the design of an organic lattice ceiling that varies in. Through varying the density, height, and size, we were able to transform the transparency of the ceiling panels, creating a sense of depth to the space as you move through it.
The interior design elements were extended to the exterior facade, which is pulled up at the entry and is connected along the ceiling, providing continuity between the exterior and interior envelopes. Through the unity of interior and exterior, the effect is a constantly changing dynamic to the street, where the public is enticed to view and join in the activities of the restaurant.
- Any
- 2019
- Project Status
- Construït
- Client
- Banu Hotpot Restaurant Co. Ltd
- Equip
- Sanhoi Lam(Kane AUD), Vivianna Wang, Mariarosa Doardo
- Yichen Lu, Ted Kane (Kane AUD)
- Chief Architect
- Chen Chen
- Lighting Design
















