Wohnhaus Link

Pöcking, Germany
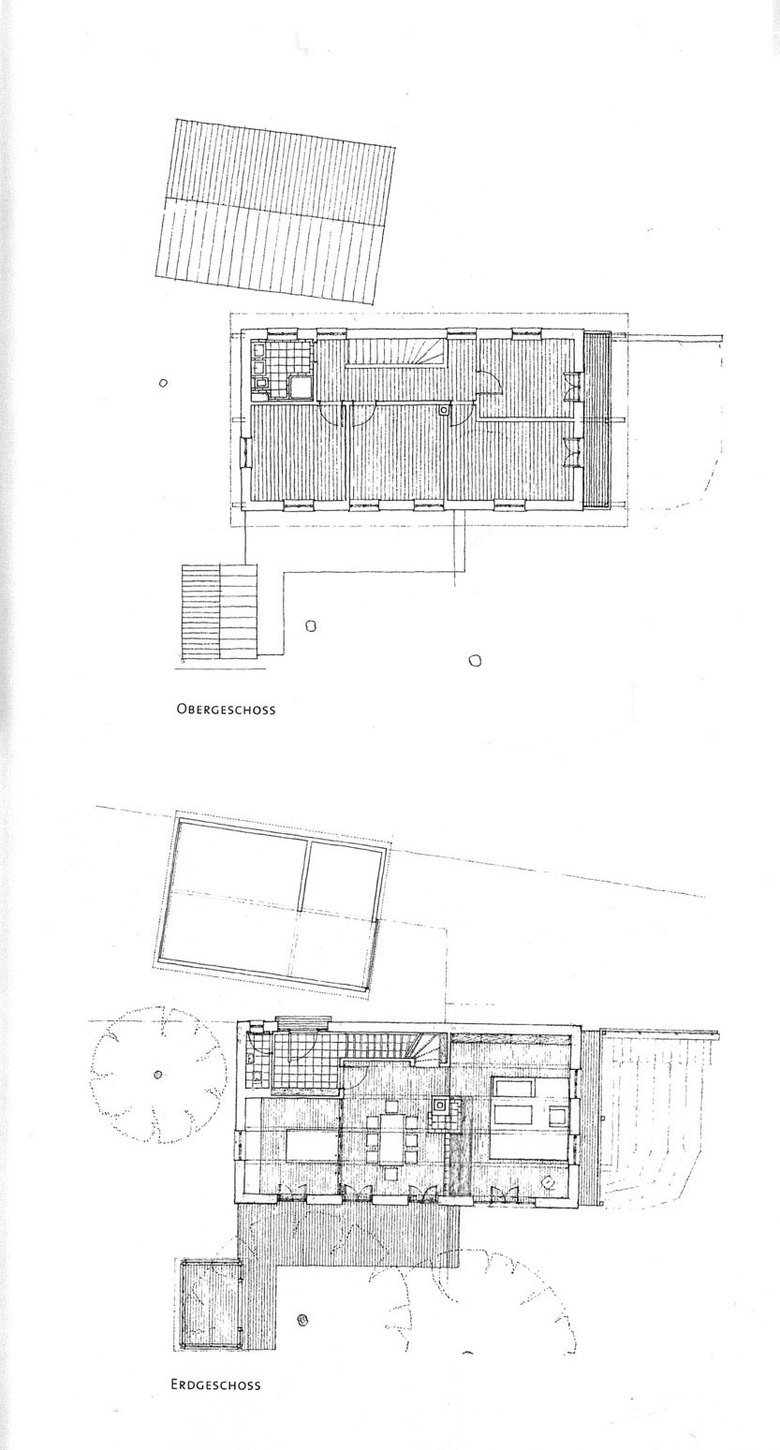
Dibuix © Bruno Franchi

Einfamilienhaus mit Garage und Gartenhaus für eine 6-köpfige Familie. Umfang. 200 qm WF, Garage, Gartenpavillon

Video
“Die große Kunst, ein kleines Haus zu bauen”, von Dieter Wieland im BR (Bayerischer Rundfunk)

Kunde
privat

Leistung
Architektur und Interior

Bearbeitungszeitraum
1998-2000

Projektbeteiligte
Bruno Franchi

Fotos
Jens Weber, München
Bruno Franchi, München

Dibuix © Bruno Franchi
Fotografia © Jens Weber
Fotografia © Jens Weber
Fotografia © Jens Weber
Fotografia © Jens Weber
Fotografia © Bruno Franchi
Fotografia © Bruno Franchi
Fotografia © Bruno Franchi
Any
2003

Altres projectes per Studio Bruno Franchi 

Kolonialhotel “Bell Rock”
Rust, Germany
Hofstelle Ebn
Simbach, Germany
Haus der Bürger und Vereine
Pöcking, Germany
Japanisches Onsenbad
Radolfzell, Germany
Bora Hot Spa Resort
Radolfzell, Germany