Privatvilla

Cecina/Gardasee, Italy
Fotografia © Studio Bruno Franchi

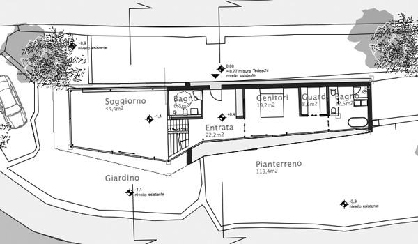
Eine Privatvilla als Teil der Terrassenlandschaft am Gardasee. Die extrem engen Abstandsflächen erlauben nur eine Gebäudetiefe von 4 - max. 6 m. Der Entwurf bewahrt den Nachbargebäuden einen optimalen Seeblick. Umfang: ca. 250m2

Kunde
privat

Leistung
Architekturplanung, Lph1-4

Bearbeitungszeitraum
2009-2010

Projektbeteiligte
Bruno Franchi mit Achim Dannenberg
Mitarbeit: Stefan Horn

Dibuix © Studio Bruno Franchi
Dibuix © Studio Bruno Franchi
Dibuix © Studio Bruno Franchi
Dibuix © Studio Bruno Franchi
Dibuix © Studio Bruno Franchi
Visualització © Studio Bruno Franchi
Dibuix © Studio Bruno Franchi
Any
2010

Altres projectes per Studio Bruno Franchi 

Wohnhaus Link
Pöcking, Germany
Kolonialhotel “Bell Rock”
Rust, Germany
Hofstelle Ebn
Simbach, Germany
Haus der Bürger und Vereine
Pöcking, Germany
Japanisches Onsenbad
Radolfzell, Germany