Binder Wood Center
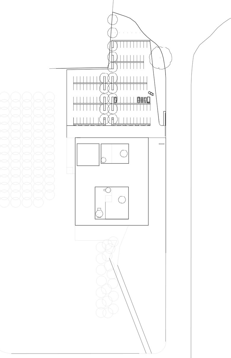
Projektcoordination für Matteo Thun. Entwurfsplanung, Leitdetails für Architektur und künstlerische Bauleitung. Programm : Die Büro-, Seminar- und Ausstellungsbereiche des erdgeschossigen Verwaltungsgebäudes gruppieren sich um zwei atriumartige Innenhöfe. Der Gebäudeentwurf thematisiert vor allem die Flächigkeit der großformatigen Dickholzplatten, die für die gesamte Gebäudekonstruktion zum Einsatz kommen. Bei diesen Bauelementen handelt es sich um einen neuen Baustoff der der Fa. Binder den BBS-Platten. Die geschlossenen Außenwände aus massiven, geschosshohen Holzplatten werden immer wieder durch exakt außenbündig eingebaute Fensterelemente unterbrochen, die ebenfalls die volle Wandhöhe einnehmen. Auf den Wandscheiben ruht ein Flachdach mit großem Dachüberstand, das mit seinem kräftigen Dachrand nur als mächtige Holzplatte lesbar ist. Es entsteht ein sehr einfacher und prägnanter Baukörper der vor allem in seinen Innenhöfen eine fast klösterlich anmutende, meditative Ruhe ausstrahlt.
Aufgabe
Verwaltungsgebäude der österreichischen Gruppe Binderholz in Niedrigenergie BBS Massivholzbauweise.
Umfang
Rezeption, Foyerbereich, Konfernzbereich, Besprechungsräume, Cafeteria, 60 Büros, Musterausstellung ein öffentlicher Zugangsatriumhof und ein halböffentlicher den Büros zugeordeter Mitarbeiter Atrumhof
BGF
ca.3.000 qm
Kunde
Binderholz Gruppe,
Matteo Thun &Partners, Mailand (I)
Leistung
Masterplan, Architektur
Bearbeitungszeitraum
2005-2008
Projektbeteiligte
Bruno Franchi,
Projektleitung Architektur für Matteo Thun &Partners, Mailand (I)
Fotos
Jens Weber, München












