On Labs

Förrlibuckstrasse 10, 8005 Zürich, Switzerland

Founded as an innovative start-up in 2010, On has since grown into a worldwide leader among running shoe brands.

Situated in the dynamic Zurich West district, the firm’s new corporate headquarters by local architects EM2N provide space for approximately 1000 employees in a 17-storey high-rise building. Spillmann Echsle’s interior fit-out, a joined collaboration with Specific Generic of Stockholm, reflects the architectural logic of the building as a whole and forms a spatial link between the two different worlds of product development housed within: the “lab”, which occupies the structure’s four-storey base, and the “neighbourhoods” above, where marketing, logistics, and sales activities take place.

A reception area with an integrated café and shop is located on the ground floor. One floor up, a generous two-storey space for meeting and co-working is open to external visitors, thus establishing a connection to the surrounding city.

While stairs in the building’s base are straight, they curve to form ever-narrower spiral staircases in the tower above. These staircases provide access between the three-storey “neighbourhoods” stacked one atop the other, each of which contains a kitchenette, a break area, various informal meeting spaces, office workspaces, and conference rooms. The conference rooms are concentrated in the building’s open-plan centre, where they are organised around a stair core and wrapped in perforated wood sheathing. Large pivot doors create generous openings in the sheathing, blurring the threshold between the work and meeting spaces on either side.

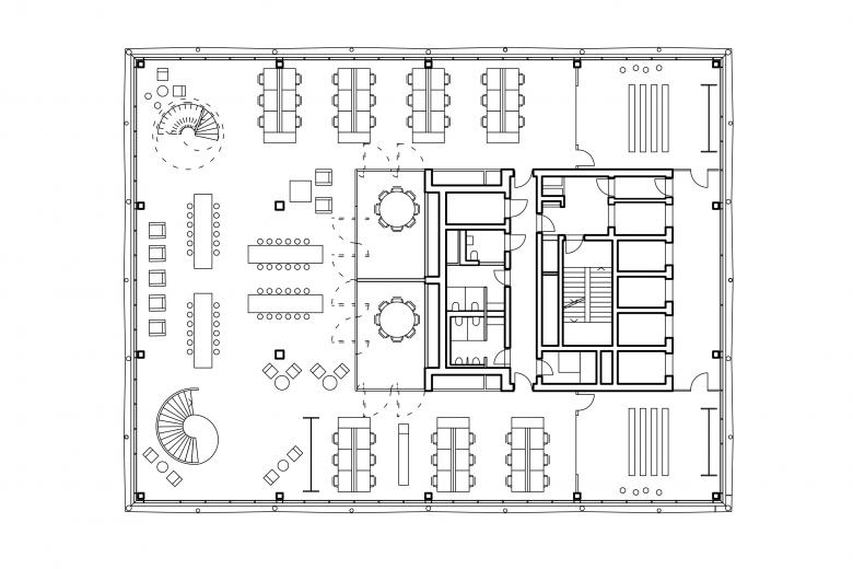
Grundriss On OG Xll
Dibuix © spillmann echsle architekten ag
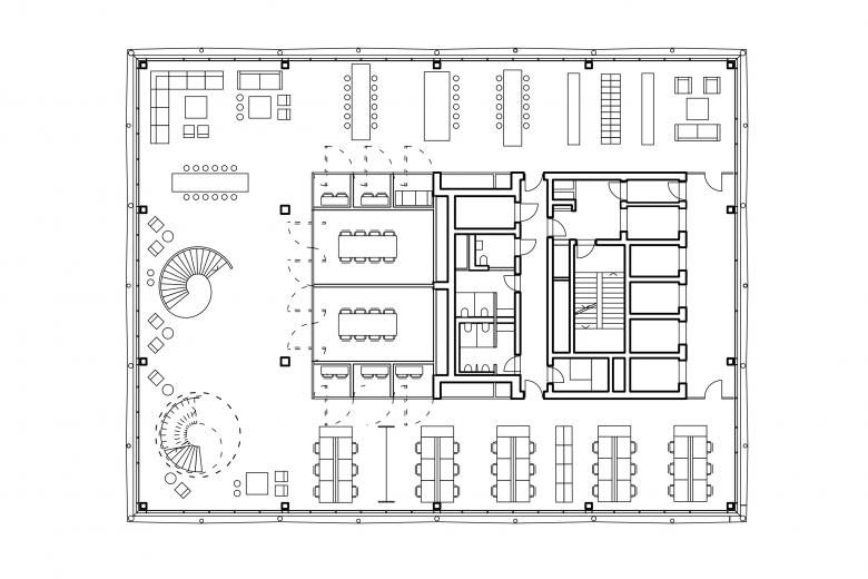
Grundriss On OG XI
Dibuix © spillmann echsle architekten ag
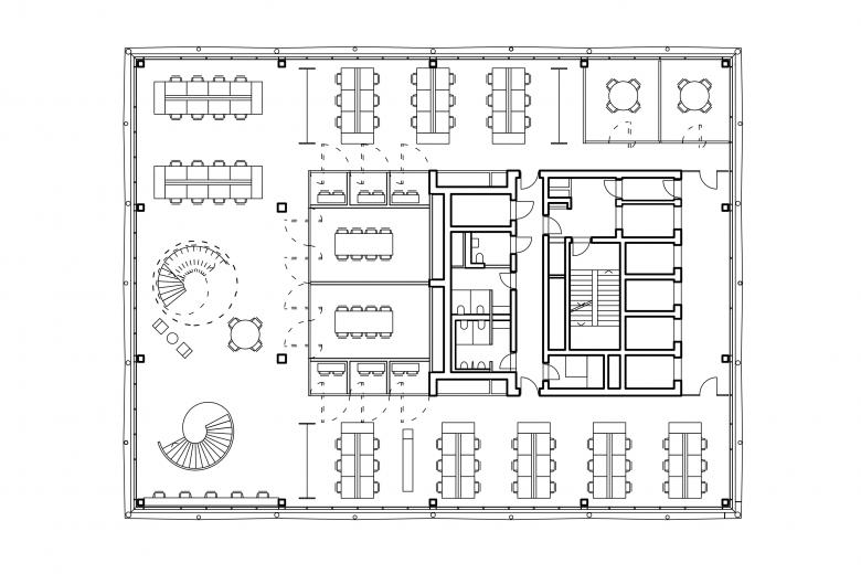
Grundriss On OG X
Dibuix © spillmann echsle architekten ag
Dibuix © spillmann echsle architekten ag
Any
2022
Client
On
Equip
annette spillmann, harald echsle, christoph heitzmann, andrás kiss, philippe steiner, siyi dai, linda hatava, simone iseli, chen kaihong, gosia kocima, alexandra meuche, raphael suter
Co-Author
Specific Generic
Co-Author
Maja Bernvill

Altres projectes per spillmann echsle architekten 

Military Barracks Zurich
Zürich, Switzerland
Halle 550, Zurich-Oerlikon
Apartement House Birchsteg
Zurich, Switzerland
Freitag Shops Worldwide
Freitag Factory Maag
Zurich, Switzerland