Pridham Hall
Together with local partner, JPE Design Studio and Jam Factory, Snøhetta has completed its first project in Australia: the new Pridham Hall in Adelaide. As a state-of-the-art sporting facility and student center, Pridham Hall is the new social heart of University of South Australia’s City West campus, and serves as a vibrant space where university life, milestones and academic achievements are celebrated.
University of South Australia was founded in its current form in 1991 with the merger of the South Australian Institute of Technology and the South Australian College of Advanced Education. By transforming the on-campus student experience and enabling access for the surrounding community, Pridham Hall has become a civic landmark for both the university and the city.
This new addition to Adelaide’s west end highlights the importance of public spaces that engage and inspire connectivity between students, learning and the wider Adelaide community. Pridham Hall delivers a new comprehensive sporting hub to the university’s City West campus to encourage students’ well-being and physical health, while simultaneously providing an on-campus venue for graduations, events and student interaction.
The main features of the building are the Hall, a pool, sports facilities and function spaces, as well as integrated green spaces, fulfilling the university’s ambition to create a welcoming destination for students and visitors alike. By allowing public access to both interior and exterior spaces, the building aims to create a sense of public ownership and engagement.
The interaction between the landscape and the building offers passersby a snapshot of the life inside Pridham Hall and creates a welcoming façade to the campus which enhances activity occurring both inside and outside the building. At the north-eastern and western sides of the building, the roof extends down to street level to create two terraced green recreation spaces which function as large external public amphitheaters. These flanked “green wings” are designed to produce an exceptional display of textures and colors, showcasing the plant species from Southern Australia with emphasis on those from the Adelaide region. Creating a dedicated social space, the western amphitheater is integrated with the adjacent buildings with opportunities for outdoor cinema and events. The north-western corner of the building is lifted, highlighting the main entry and Pridham Hall’s connections with the urban realm.
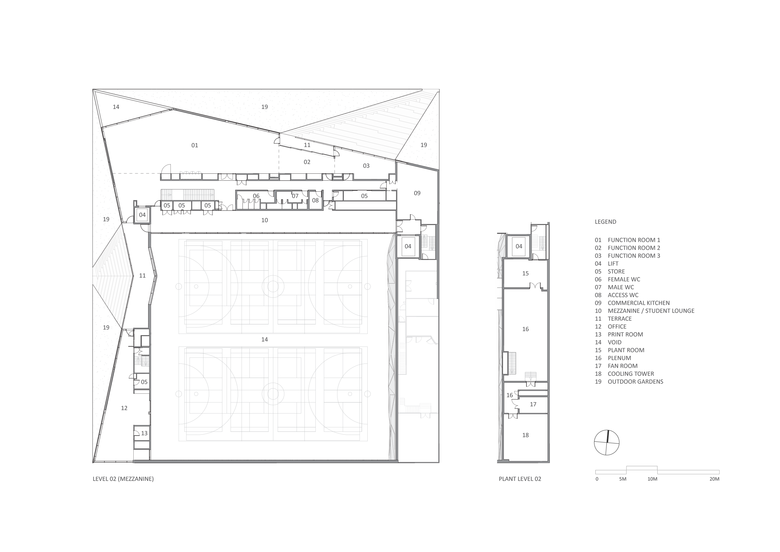
The heart of the building is the Hall, located on the ground floor. Differing from traditional academic main halls, this multifunctional space houses both sport activities, events and ceremonies. Designed with distinct red elements in the draping and patterns on the timber walls, the aesthetics of the Hall contrasts the surrounding lobby area, creating an energetic and vibrant space. The 1,600 sqm Hall includes a climbing wall and a student lounge mezzanine at the second level. In addition, the building can also be transformed from a sports hub to a capacious event space with the ability to host everything from banquets to UniSA’s annual graduation ceremonies for up to 2,000 people.
UniSA Sport is situated at the basement level and offers a gymnasium, dance studio and a unique 25-meter swimming pool. Vertical connection between these spaces and the ground floor is created by the use of glazed voids between the street and the lobby where views and daylight are able to penetrate with maximum effect.
In alignment with UniSA’s target of 15 % reduction in campus-wide carbon emissions by 2021, the project embeds several energy-reducing strategies into the design that are both high and low-tech. The design of Pridham Hall enables natural light to penetrate deep into the building, from the basement level through to level 1, reducing the need for artificial lighting and heating by using efficient passive design features. The ground floor lobby space’s permeable glazed facades opens up and allows for natural ventilation, creating an indoor-outdoor space and flexible use. The northern and western lobbies are considered a single internal plaza space, with strong visual and physical connection to the outside, allowing full enjoyment of the warm Adelaide climate.
Designed to integrate with the neighboring university facilities, Pridham Hall contributes to a lively atmosphere with the ability to facilitate recreation and connectivity between the university, business and student communities. The hub extends campus life and culture beyond daytime, creating a place that influences the changing nature of the campus and the west end of Adelaide.
- Any
- 2019
- Project Status
- Construït
- Client
- University of South Australia
- Collaborators
- JPE Design Studio, Jam Factory

















