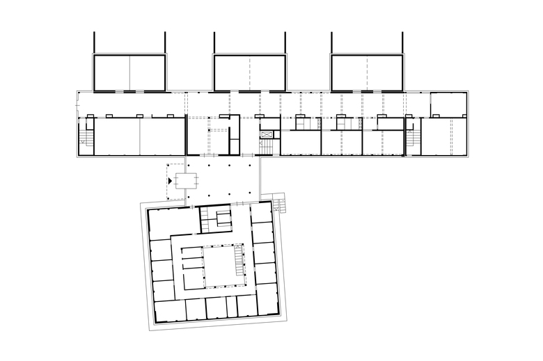
Erweiterung und Umbau der Bayerischen Justizschule Pegnitz
Das bestehende viergeschossige Gebäude wird nach Süden verlängert, so dass die bestehende Eingangshalle nun im Schwerpunkt der Gesamtanlage liegt. Im Erdgeschoß werden Lehrsäle nach Westen in die Topographie integriert. Es entstehen in die Landschaft eingeschnittene Höfe, die die Verzahnung mit der Landschaft neu interpretieren. Die großzügige Magistrale mit allen Unterrichtsräumen im EG verknüpft den zentralen Erschließungsbereich mit dem äußeren Wegenetz (Anbindung an die Mensa) und ermöglicht eine vielfache Nutzung (Erweiterung für Pausenflächen, Cafeteria etc.), durch die Aus- bzw. Einblicke in die Lehrsaalhöfe wird dieser Weg besonders reizvoll.
In den Obergeschossen werden Unterkunftszimmer zweibündig (analog zum Bestand) angeordnet, wobei Fluraufweitungen, teilweise mit Loggien Ausblicke in die Landschaft inszenieren.
Im bestehenden Pavilliongebäude werden zentral Verwaltung (EG) und Freizeitbereiche (Souterrain) angeordnet. Der nördliche Hof mit Wasser und Grün auf dem Niveau des Frankenstüberls ermöglicht einen Freiraumbezug der Freizeitbereiche. Die Erweiterung nach Süden schafft eine attraktive Verknüpfung von Haupteingang und Mensa, eine zeichenhafte, großzügige Zugangssituation sowie eine klare Freiflächenzonierung. Durch die erhöhte Lage werden Ausblicke ins Tal und ins Grün geschaffen.
Die Baumaßnahme wurde in zwei Bauphasen realisiert, wobei der Unterrichtsbetrieb mittels Interimslösungen in Containern in allen Phasen aufrecht erhalten werden konnte.
Aufgabe
Umbau und Erweiterung des Schulungszentrums mit Unterkunftszimmern, Cafeteria, Bierstüberl, Kegelbahn, Unterrichts-, Sport- und Verwaltungsräumen
Bauherr
Freistaat Bayern
Leistungsumfang
LPH 2-7 HOAI
Kenndaten
NF 4.300 m²
Ausführungszeit
Wettbewerb 1. Preis 07l2002
Planungsbeginn 11l2002
Ausführung 06l2003
Fertigstellung 1. Phase 08l2007
Fertigstellung 2. Phase 07l2009
- Any
- 2009
- Project Status
- Construït



