304 South Gay Street

Knoxville, TN, USA
Fotografia © Jeffrey Jacobs Photography

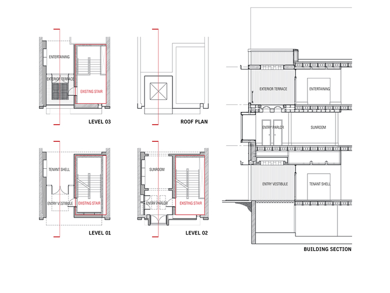
After convincing the Owners of the great opportunity presented by the 100 year old building historically unrecognizable due to two 20th century fires, they retained us with the goal of creating a new façade for the building whose interior spaces had undergone a fairly recent renovation.  The task was to create an entrance to a street level tenant space that would also act as a front door vestibule for the couple and their two young children, who would occupy the top two floors.  A limited budget necessitated keeping an existing fire stair, prohibiting any major openings along half of the front façade.

Our ambition was to create a new façade which would reflect the mixed use of the building while bringing natural light deeper into the interior.  This was accomplished by carving away the front entry and third floor brick walls and space, creating a vestibule at the ground level and a private outdoor terrace on the third level.  The existing second floor window opening was then widened to accommodate a window seat and pair of in-swing casement windows. Skylights below galvanized metal grates at the terrace level bring light into the entry parlor and sunroom.  Zinc was chosen as an exterior cladding material over the remaining existing brick at the residential level, while ipe wood clads the fire stair at the street level tenant space and third floor exterior terrace.

Dibuix © Sanders Pace Architecture
Fotografia © Jeffrey Jacobs Photography
Fotografia © Jeffrey Jacobs Photography
Dibuix © Sanders Pace Architecture
Fotografia © Jeffrey Jacobs Photography
Fotografia © Jeffrey Jacobs Photography
Fotografia © Jeffrey Jacobs Photography
Fotografia © Jeffrey Jacobs Photography
Any
2005

Altres projectes per Sanders Pace Architecture 

Southeastern Glass Building
Knoxville, TN, USA
Barrier Island House
Vero Beach, FL, USA
Holston River House
Mascot, TN, USA
Cape Russell Retreat
Sharps Chapel, TN, USA