La construcción del CEMAFE, Centro de Especialidades Médicas Ambulatorias de Santa Fe, tiene como objetivo satisfacer la demanda de diagnóstico y tratamiento de prácticas de alta complejidad en forma ambulatoria, tanto en la ciudad de Santa Fe como en toda la región centro-norte de la provincia.
Forma parte de la estrategia sanitaria en red promovida por el Gobierno de la Provincia de Santa Fe, a los fines de garantizar no sólo la cobertura sanitaria igualitaria, sino también el fácil acceso a los efectores de salud. Por este motivo, se buscó una de las zonas con mejor conectividad del sistema de transporte público de la ciudad.
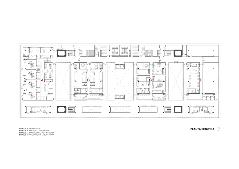
El CEMAFE se plantea como una estructura horizontal de dos niveles, con el fin de reducir la dependencia de ascensores. El interior es regulado por la disposición de patios que proporcionan iluminación y ventilación natural a todas las áreas, siendo el manejo de la luz el elemento principal de la cualificación del espacio.
Es importante también la estructura circulatoria planteada en base a circulaciones horizontales que recorren ininterrumpidamente todo el edificio: una pública para pacientes ambulatorios y visitas; otra médica, restringida a pacientes ingresados y personal sanitario. Estas circulaciones no se cruzan nunca y tienen sus sistemas verticales propias y exclusivas. Ambas circulaciones se conectan a través de otras perpendiculares que son mixtas donde coinciden pacientes y personal sanitario.
Desde el punto de vista constructivo el principal desafío fue la cimentación que al tratarse de terrenos de relleno ganados al río requerían buscar terrenos firmes a gran profundidad. Por lo tanto, se optó por una estructura de losas colgadas de una grilla de vigas en la azotea que está soportada por solo cuatro grandes columnas, fundadas a través de un conjunto de 12 pilotes por columna que llegan a una profundidad de 35 metros. Las columnas tienen una luz entre ellas de 60 metros y las losas tienen un voladizo en los extremos de 22 metros.
Debido a que el edificio está colgado de la grilla de hormigón superior permite la creación de una plaza cubierta de ingreso sin ninguna columna, lo que permite que el edificio flote sobre este espacio público.
En síntesis, CEMAFE da una respuesta contemporánea, tanto a la atención ambulatoria de alta complejidad, como al planteo arquitectónico, urbanístico y constructivo.
NOTA
La obra ha sido galardonada con el Primer Premio / Premio ARQ FADEA 2018, donde se destaca la nueva forma de proyectar hospitales.
CEMAFE Centro de Especialidades Médicas Ambulatorias de Santa Fe
Torna enrere a la llista de projectes- Any
- 2017
- Equip
- Arq. Evangelina Dania, Arq. Jorgelina Paniagua, Arq. Andrea Hidalgo, Arq. Fernanda Mastrizzo, Arq. Luciana Casas, Arq. Cecilia Lotito, Arq. Hermes Garrefa, Arq. Carla Gianoni. Ing. Dante Seta, Ing. Mali Baqué, Ing. Civil Daniel Gutiérrez Arq. Raúl Utges, Ing. Alejandro Ferrarini, Lucía Vicevic, Arq. Mario Corea, Arq. Silvana Codina, Arq. Francisco Quijano, Arq. Bruno Reinheimer















