LUWA-Areal
Das Potential des Areals orten die Verfassenden in der baurechtlichen Präferenz, über die umliegende Bebauung hinaus weiträumige Akzente setzen zu können. Die zugelassene Ausnützungsziffer ist dabei eine enorme Herausforderung, die nach einer städtebaulichen Umsetzung sucht. Das heterogene mittelräumige Umfeld offeriert weder Anknüpfungsargumente noch übergeordnete Strukturen, was eine, klassische Stadtreparatur‘ zum vornherein ausschliesst. Eine selbstbewusste Entwicklung verfolgen darum auch die Verfassenden.
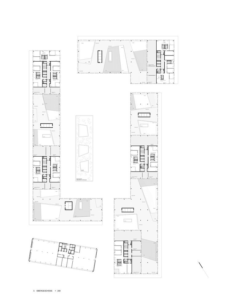
Die Aufwertung des LUWA-Areals soll über einen auf städtebauliche Wirkung bedachten Eingriff erfolgen. Ein Ensemble aus fünf hohen Häusern kann diese Orientierungsmarke im näheren Quartier übernehmen. Eine Sockelbebauung unterlegt und positioniert die Hochhäuser gleichsam. Die Basisbebauung nimmt Höhenmass beim angrenzenden Stadtkörper und bindet die Anlage in den städtebaulichen Kontext ein. Es entsteht eine Hofrandbebauuung mit ‚Fingerkrone‘, dessen Hofraum Zentrum und Adresse der Anlage bildet. Das maximale Aufspreizen der fünf Finger bewältigt die Beschattungsanforderungen und generiert einen unerwartet grosszügigen städtischen Freiraum. Aufgrund der diskreten Zugänglichkeit vom Strassenraum über schmale Gebäudepausen wird der neue ruhige Stadtraum im wesentlichen von den Wohnenden und Arbeitenden genutzt werden; ohne dass die Öffentlichkeit dadurch ausgeschlossen wäre. Die neue Bebauung bildet für das Gebäude Anemonenstrasse die Kulisse und deutet den Hinterhof in einen Vorhof zum Hauptplatz um.
Die vorgeschlagene Bebauung will gleichzeitig Qualitäten für das Wohnen und für das Arbeiten generieren. Die Trennung von ‚Wohnen im Hochsitz‘ und ‚Arbeiten in der Vernetzung‘ ist Konzept. Die hohe Ausnützung verlangt zur Gewinnung von Freiraum und Spielraum für das Wohnen die Nutzung der Dachlandschaft. Dieses ‚Relaisgeschoss‘ über der Randbebauung vermittelt denn auch räumlich zwischen dem erdgeschossigen Hofraum und den Wohnungen in den Höhen.
- Any
- 2001
- Project Status
- En construcció





