Deutsche Börse

Eschborn, Germany
Fotografia © Jean-Luc Valentin

Der Neubau der Deutschen Börse bietet auf ca. 80.000 qm Bruttogeschossfläche Raum für mehr als 2.000 Mitarbeiter des Unternehmens. Ziel war es, ein Identität stiftendes Gebäude zu schaffen, das nicht nur das heterogene städtebauliche Umfeld in Eschborn aufwertet, sondern zugleich die Unternehmenswerte der Deutschen Börse Group, wie Transparenz, Offenheit und Nachhaltigkeit verkörpert.

Der 87 Meter hohe Kubus markiert weithin sichtbar den neuen Standort der Deutschen Börse. Zwei L-förmige Baukörper, die punktsymmetrsich zueinander angeordnet sind, umschließen die zentrale, rund 80 Meter hohe Eingangshalle. Vernetzt durch Brücken, Stege, Treppen entsteht ein dreidimensionaler Kommunikationsraum mit vielfältigen Sichtbeziehungen.

Das Gebäude erhält als erstes Hochhaus in Deutschland die höchste Zertifizierung nach dem LEED-Standard, die sogenannte Platin-Zertifizierung (LEED= Leadership in Energy and Environmental Design). Als „Green Building“ verfügt der Neubau über modernste Techniken zur Minimierung des Energieverbrauchs wie Kraft-Wärme-Kälte Kopplung, Solarthermie und eine hocheffiziente Wärmerückgewinnung. Die Anlagen sind für einen CO2 - neutralen Betrieb mit Biogas ausgerüstet. Die neue Zentrale der Deutschen Börse, eines der größten Börsenorganisationen der Welt, ist somit auch in ökologischer Hinsicht ein vorbildlicher Bau.

BGF
80.000m²

Fertigstellung
07/2010

Zertifizierung
LEED Platin

Lageplan
Dibuix © KSP ENGEL
Fotografia © Jean-Luc Valentin
Fotografia © Jean-Luc Valentin
Fotografia © Jean-Luc Valentin
Fotografia © Jean-Luc Valentin
Fotografia © Jean-Luc Valentin
© Jean-Luc Valentin
Schnitt
Dibuix © KSP ENGEL
Fotografia © Jean-Luc Valentin
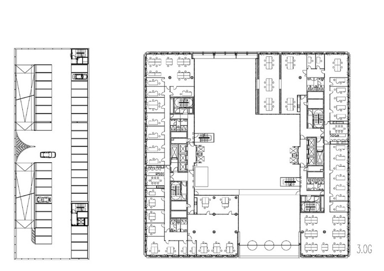
Grundriss Regelgeschoss
Dibuix © KSP ENGEL
Fotografia © Jean-Luc Valentin
Any
2010
Client
Lang & Groß Projektentwicklung GmbH

Altres projectes per KSP ENGEL 

Deutsche Bank Campus
Frankfurt am Main, Germany
Daimler Headquarters
Stuttgart, Germany
OP Zentrum Nord - Klinikum Rechts der Isar
München, Germany
Hammerbrook Höfe
Hamburg, Germany
Kunstmuseum
Tianjin, China