Country House Santanyi
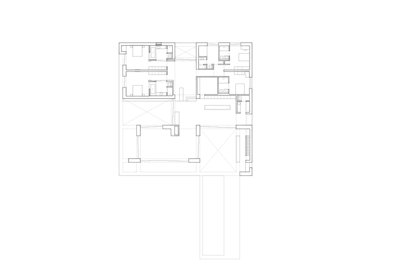
The property is surrounded by olive groves near Santanyi in Mallorca. On a gently sloping southern slope offer beautiful views of the surrounding hills and to the east in the plain to the sea. The project is generated from a simple square with the length of 26m adapted to the sloping terrain of the hill. A major concern in the site is the potential sound emissions of the road situated on the east side of the plot. The building reacts to this situation and creates a “thick” belt with a more introverted character towards north-east and south-east, which screens the sound emissions coming from the infrastructure. In the same time the volume opens up towards the main views and sunlight on south, where main living areas and swimming pool are located.
The house arises from the ground as a construction deeply rooted in the specific site. We use typical materials from the area such as “Máres” Stone together with “earth” tones plaster and Arabic roof tiles. Approaching towards the main entrance on north- east the house reveals a strong analogy to a “Casa del Campo” house, a rural construction typically found in the island. In the same time the monumental and abstract geometry reveals a more ancient and archetypical form, an “archaeological” landmark in the vast horizon of Mallorca.
Towards south the house opens gradually the living areas towards the sunlight and the main views. A set of peripheral patios and openings deconstruct the monolithic mass in the landscape and thus dissolve gradually the limits between interior and exterior. The volume transforms here to a “perforated” structural framework that frees the circulation on the ground floor while extending over the veranda and generating semi- protected areas with creeping Mediterranean plants.
- Any
- 2017




