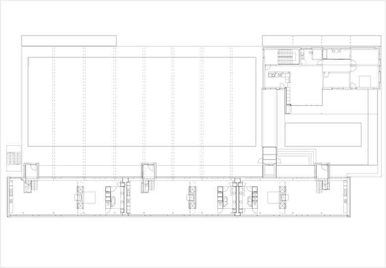
This study commission asked for an overlay of various programs, such as industrial storage space, office space and residential lofts. On top of that, the client wanted to have the option of building in two phases (which he didn’t in the end). In the competition project we suggested to build an industrial box out of polycarbonate and a concrete frame resting on v-shaped pilotis, flying over the street as a reference to the lake. The plastic box would contain all industrial programs, partly cold, partly insulated, the inner shell would be seen through the polycarbonate and give hints of the inner life. At night it would be light up like a big lantern along the street.
The plastic box was converted to a metal tin during planning, which we dug into the ground of the sloping site. In a further planning stage the client wanted an additional flat, so we added another block, beaming through the metal box in the north, containing a loft, circulation and other serving rooms. There are three precise opening, two into cold areas as the garage at the bottom and the entrance to the storage on top. The entrance to the stairways as access to the office, is a whole cut out of the metal skin that shows up as a red space image on the surface. This image is the attractor, giving a warm welcome to visitors passing through the staircase to the office.
The staircase had to fulfill the clients whish to access the offices on three levels by stairs and the lift, but only the lift would access the residential lofts on the roof level. Therefore we designed the lift as a massive concrete block hitting through the metal box, generating in the same time a light volume (glass cube) that connects the staircase with the sky.
The office and loft frame has two open sides, one is totally transparent towards the lake of Zürich and the alps, the other one is manly covered by the metalbox. The difference of the two elements in plan and section are out of glass and give additional light sources from the north.
The lofts are placed on the top floor of the frame. A fire place in the center divides living and sleeping area and on both sides two installations of one is a kitchen and the other one the bath frame the living space. Those Installation walls, where they separate the lofts, are designed so they don’t touch the floor or the ceiling. They are light up at the back, so there seems to be another secret space behind it and the frame can be felt in its whole dimension.
Designing these installations we were inspired by James Turrel’s raser blade.
As the two elements shift along their common border, the firewall, is the surface of interaction. Through the use of light we start the dialogue of these two elements, their different textures and contents. The spaces come alive and space images evolve, where there are no hierarchies o materialization.
Cedrus office
Torna enrere a la llista de projectes- Localització
- Meilen, Switzerland
- Any
- 2004
- Invited Competition
- 1st prize
















