Alsterschwimmhalle
Die Hamburger Schwimmoper öffnet wieder
Alsterschwimmhalle wurde umfassend saniert, umgebaut und erweitert
Am 24. November 2023 wird die Alsterschwimmhalle feierlich wiedereröffnet. Als einer der größten Schalenbauten Europas ist die Schwimmhalle nach einem Entwurf der Architekten Horst Niessen, Rolf Störmer, Walter Neuhäusser und dem Ingenieur Jörg Schlaich ein Wahrzeichen der Hamburger Nachkriegsmoderne. Das Betonschalendach aus zwei hyperbolischen Paraboloidschalen, die von drei Stützfüßen getragen werden, erinnerte die Hamburger:innen damals an die Oper in Sydney – und wird seitdem liebevoll „Schwimmoper“ genannt. Das spektakuläre Schalendach, der riesige Innenraum mit dem 50-Meter-Becken und die Fassadenkonstruktion wurden erhalten. Gleichzeitig wurden die Sporteinrichtungen erstmals zusammenhängend neugestaltet und um zeitgemäße Angebote ergänzt.
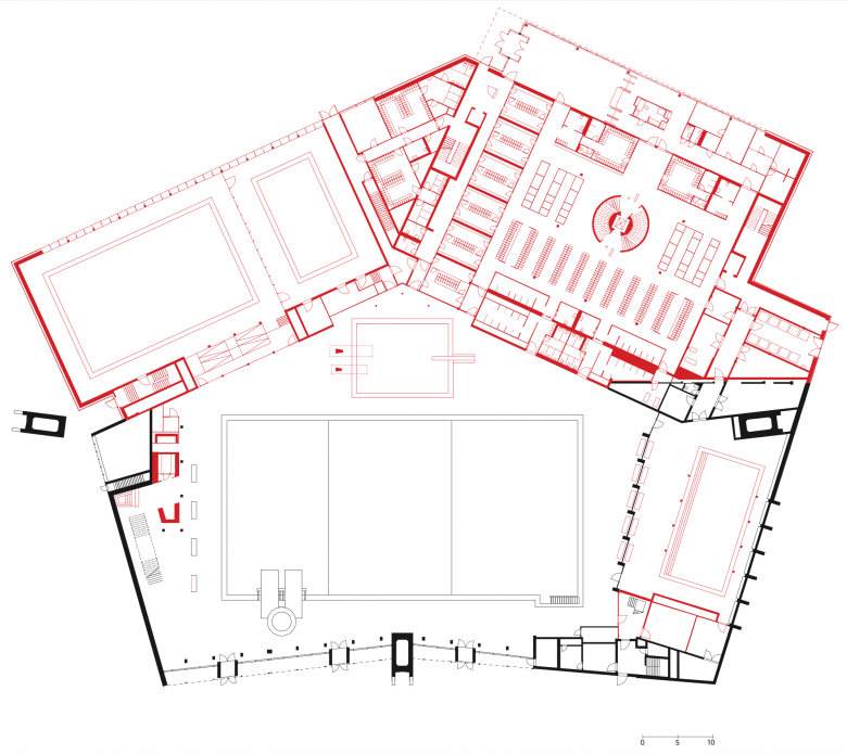
Ursprünglich war die Alsterschwimmhalle als Wettkampfstätte errichtet worden, wurde über die Jahre jedoch zu einem Freizeit- und Familienbad. Trotz 400.000 Besucher:innen im Jahr 2014 wurden aus Kostengründen damals eine Schließung mit Abriss und die Errichtung eines modernen Neubaus diskutiert. In Kooperation mit schlaich bergermann partner (sbp) erstellte gmp eine Machbarkeitsstudie, die zur Entscheidungsgrundlage für den Erhalt und die Sanierung wurde. Der Denkmalschutz des spektakulären Daches spielte dabei eine Schlüsselrolle. Auf einer Grundfläche von 4.500 Quadratmetern schwingt es sich – nur 8 Zentimeter dünn, von drei Diagonalstützen gehalten – an den Spitzen 24 Meter weit in die Höhe. Zwei der drei Stützenfundamente sind durch ein Zugband unterhalb des Schwimmbads verbunden. Mit Spannweiten von bis zu 96 Metern zählt das Dach bis heute zu den weltweit größten seiner Art.
Die große Herausforderung hinsichtlich der Statik bestand darin, Teile des alten Schwimmbads abzureißen und neu zu bauen, ohne dabei das bestehende Dach zu verändern oder durch die Bauarbeiten zu sehr zu erschüttern. So durfte das Zugband zwischen den Fundamenten nicht berührt werden und wurde während der Bauarbeiten ständig überwacht. Seit der Sanierung schützt ein neues Kathodisches-Korrosionsschutz-System (KKS) das Dach mit Schwachstrom gegen Schäden durch aufsteigendes Chlor, hohe Luftfeuchtigkeit und hohe Temperaturen.
Das 50-Meter-Becken, der 10-Meter-Sprungturm und der sogenannte Fitness-Kubus an der Ostseite blieben mit Ausnahme weniger Eingriffe erhalten. Die alte, kaum noch genutzte Tribüne neben dem Becken wurde hingegen abgebrochen, um Platz für ein neues, separates Sprungbecken zu schaffen. Auch der Ergänzungsbau im Norden wurde abgerissen und durch einen ein- beziehungsweise zweigeschossigen Neubau ersetzt. Dort entstanden ein neues 25-Meter-Schwimmbecken und ein Kursbecken, ein barrierefreier Eingangsbereich sowie Umkleiden, Fitness- und Saunabereiche. Insgesamt wurde die bisherige Wasserfläche um rund ein Viertel vergrößert, gut die Hälfte der gesamten Innenfläche wurde neu gebaut. Vor dem Haupteingang entstand ein neuer Vorplatz. Die Zufahrt erfolgt nun von der Sechslingspforte, sodass das östlich angrenzende Wohnquartier an der Ifflandstraße eine Verkehrsberuhigung erfährt. Die neu geschaffene fußläufige Durchwegung in Ost-West-Richtung verbindet das Wohnquartier mit der Innenstadt.
Die originalen Aluminium-Fachwerkstützen der Glasfassade wurden erhalten. Zudem entwickelten gmp, sbp und die Implenia Fassadentechnik ein neues, zulassungsfähiges Teleskop-Kolben-Auflager als beweglichen Anschlusspunkt zwischen Fassade und Dach, mit dessen Hilfe sich die Schwingungen der Dachflächen ausgleichen lassen. Die Oberflächen der erhaltenen Bauteile wurden entweder in aufwendiger restauratorischer Feinarbeit in der ursprünglichen Betonsichtigkeit oder auf Basis des Farbkonzepts aus der Erbauungszeit wiederhergestellt. Bauelemente wie die historischen Akustikziegel wurden restauriert und wieder eingebaut. Unter Wahrung der Balance zwischen Erhalt, funktioneller Umgestaltung und Nutzungsanpassung der Schwimmhalle wurde ihre bauliche Identität erhalten; Nutzung und Betrieb sind für die Zukunft gesichert.
Entwurf Horst Niessen, Rolf Störmer
Überarbeitung Walter Neuhäusser
Tragwerksplanung Jörg Schlaich für Leonhardt und Andrä
Umbau Volkwin Marg und Nikolaus Goetze mit Marc Ziemons
Projektleitung Gutachten Jan Blasko
Mitarbeit Gutachten Tim Leimbrock
Projektleitung Ausführung Tim Leimbrock, Jörn Ortmann
Mitarbeit Ausführung Karl-Heinz Behrendt, Peter Brändle, Heather Carlsen, Katharina Chlosta, Renata Dipper, Victoria Ebert, Nicole Flores, Martina Klostermann, Liselotte Knall, Lukas Kühn, Kristina Milani, Svetlana Normantovich, Thorben Oelke, Regine Saunders, Kostiantyn Savinskyi, Christine von der Schulenburg, Alexa Schmidbauer, Kerstin Steinfatt
Generalplanung Carsten Plog
Leitung Vertrags- und Baumanagement Karsten Schillings
Leitung AVA Torsten Hinz
Leitung Objektüberwachung Christian Kleiner
Mitarbeit Baumanagement Sandra Brosterhaus, Monica Franz, Katja Poschmann, Lucia Sanchez, Andreas Schulz, Som Phone Sysavanh, Simon Ulka, Julia Weinert-Nielsen
Tragwerksplanung schlaich bergermann partner (sbp)
Haustechnik/TGA Eneratio PartGmbB Beratende Ingenieure für rationellen Energieeinsatz
Lichtplanung Conceptlicht GmbH
Bauphysik vRP von Rekowski und Partner mbB
Fassadenberatung DS-Plan Ingenieurgesellschaft für ganzheitliche Bauberatung und Generalfachplanung GmbH
Brandschutz Ingenieurbüro T. Wackermann GbR
Landschaftsplanung Lichtenstein Landschaftsarchitektur & Stadtplanung PartGmbB
Abbruch/Erdarbeiten H. Ehlert & Söhne GmbH & Co. KG
Verbau Johann Heidorn GmbH & Co. KG
Raumgerüst Th. Treichel Gerüstbau GmbH
Rohbau Gerhard Lühn GmbH & Co. KG
Betonsanierung Instakorr GmbH, Spritzbeton + Injektionstechnik GmbH
Betonrestaurierung Sichtbetonoberflächen A&M restore
Fassade Implenia Fassadentechnik GmbH
Dachabdichtung Schmidt Bedachung Hamburg GmbH, Dach Schneider Weimar GmbH
Fliesen/Platten Fliesen Lepping GmbH & Co. KG
Trockenbau Baierl & Demmelhuber Innenausbau GmbH
Tischlerarbeiten FSL Ladenbau GmbH
Schlosserarbeiten Otto Metallbau
Malerarbeiten Thomas Möller GmbH
Restauratorische Arbeiten Nüthen Restaurierungen GmbH & Co. KG
Trennwandsysteme Schäfer Trennwandsysteme GmbH
Glastrennwände H + S Alubau GmbH
Abhangdecke Hyparschale Lindner Group KG
Holztüren Tischlerei Kirsch GmbH
Metalltüren Oltmanns Metallbau GmbH
Kalttauchbecken e.s.m. Edelstahl- Schwimmbad- und Metallbau GmbH
Sportboden/Bodenbeläge Brandt Malermeister
Sportbodenbeschichtung TOP-SPORT GmbH Sporthalleninnenausbau
Förderanlagen Hans Lutz Maschinenfabrik GmbH & Co. KG
Abwasser/Wasser Quandt Haustechnik GmbH
Heizungstechnik Horst Jeske Sanitär- und Heizungsbau GmbH
Lüftungstechnik WISAG Gebäude- und Industrieservice Nord GmbH & Co. KG
Gebäudeautomation autech tesla automation GmbH
Elektrotechnik/Beleuchtung Siegfried Nass GmbH
Baustrom Schulz Systemtechnik GmbH
Trafoanlagen WISAG Elektrotechnik Nord GmbH & Co. KG
Beschallung Alarm- und Sicherheitstechnik B.W. GmbH
Übertragungs-/Sicherheitstechnik Büchner Kommunikations-Netzwerke GmbH
Blitzschutz NDB Elektrotechnik GmbH & Co. KG
Küchentechnik Kneifel Großküchen- und Objekteinrichtungs GmbH & Co. KG
Schwimmbadtechnik Aquila Wasseraufbereitungstechnik GmbH
Brandschottungen svt Holding GmbH
Außenanlagen Osbahr GmbH Garten- und Landschaftsbau
Saunabau Baum‘s Holzteam GmbH
Schwimmbadeinrichtung Lausitzer Edelstahltechnik GmbH
Dampfbad Hilpert GmbH & Co KG.
Bad-/Saunamöbel Gärtner Büro und Wohnen GmbH
Beschilderung Signtec Leit- und Informationssysteme GmbH
Kassensystem Ticos Systems Deutschland GmbH
- Any
- 2023
- Client
- Bäderland Hamburg GmbH























