BerlinBioCube - Gründerzentrum

Robert-Rössle-Straße 10, 13125 Berlin-Buch, Germany
Fotografia © Marcus Bredt

LPH: 2-8
BGF: 13.943 m²
NUF 1-7: 7.742 m²
BRI: 63.868 m³
5 Geschosse

Der Neubau des Gründerzentrums BerlinBioCube ist als flexible Labormietimmobilie für Start-up Unternehmen des biotechnischen- und biomedizinischen Bereichs geplant und befindet sich auf dem Campusgelände des BiotechParks Berlin-Buch.
Sein Baukörper integriert sich nahtlos in die bestehende, rechteckige Campusstruktur. Das Gebäude erhält eine durchgehende homogene Gestaltung aus einem vorgesetzten Raster von Fassadenprofilen. Diese definieren den klar ablesbaren Kubus und betonen dessen Präsenz auf dem Campus. Die Eckbereiche des Gebäudes werden zusätzlich durch vorgesetzte, flächige, mit Textilgewebe bespannte Rahmen gefasst und die Raumkanten des Volumens im Kontext der Umgebung gestärkt.
Die netzartige Fassade ist in mehrere Schichten unterteilt. Ein Netz aus vertikalen, tieferen Profilen, mit Textilgewebe bespannten Rahmen betonen die architektonischen Konturen und dienen gleichzeitig als zusätzlicher Sonnenschutz für die verglasten Eckbüros. Diese Schichtung lässt ein Relief mit einem beeindruckenden Spiel von Licht und Schatten entstehen.
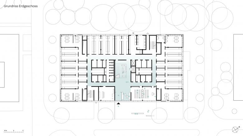
Der Grundriss des fünfgeschossigen Gründerzentrums ist als ringförmiger 3-Bund mit fassadenseitig umlaufenden Nutzungsflächen, einem ringförmigen Flur und einer unbelichteten Mittelzone organisiert. Ein zentraler mehrgeschossiger, offener Treppenraum in der Mitte des Gebäudes dient als mieterübergreifender Treffpunkt, der einen regen Informationsaustausch zwischen den Mietern ermöglicht. Mit geschossübergreifenden Sichtbezügen verbindet er die verschiedenen Etagen und schafft eine offene und einladende Atmosphäre.

Fotografia © Marcus Bredt
Fotografia © Marcus Bredt
Fotografia © Marcus Bredt
Fotografia © Marcus Bredt
Fotografia © Marcus Bredt
Fotografia © Marcus Bredt
Dibuix © DORANTHPOST
Dibuix © DORANTHPOST
Any
2023

Altres projectes per DORANTHPOST Architekten GmbH 

Deutsches Theater München
München, Germany
Ernst Strüngmann Institut
Frankfurt am Main, Germany
Neubau Laborgebäude für Zentrum der Biomedizinischen Forschung, Himberg
Himberg, Austria
Zentralinstitut für Translationale Krebsforschung
München, Germany
GMCII Helmholtz-Zentrum
Neuherberg, Germany