Sanierung und Erweiterung des Feuerwehrhauses Kaufbeuren
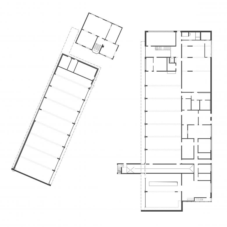
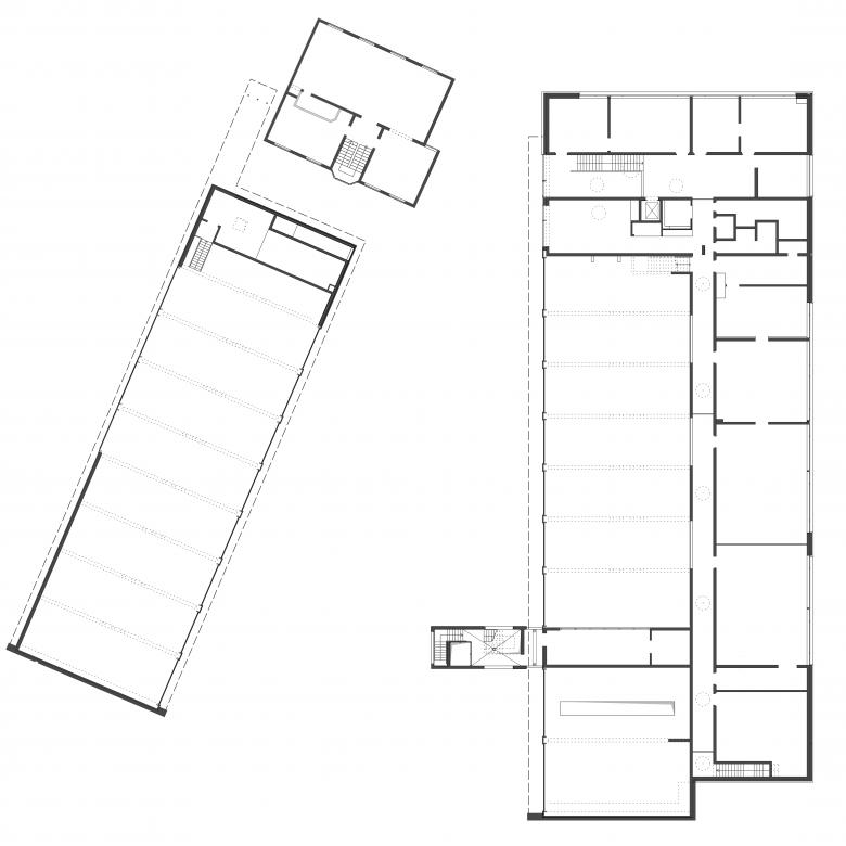
Die Neubauten ergeben zusammen mit dem bestehenden Kopfbau ein Ensemble, das sich um einen geschützten Innenhof lagert. Mit der Gebäudestellung werden die beiden Richtungen der Umgebungsbebauung und der Neugablonzer Straße aufgenommen. Der Schlauchtrocken- und Übungsturm verdeutlicht als Hochpunkt die Nutzung des Ensembles.
Die Alarmplätze liegen im östlichen Teil des Grundstücks mit Zufahrt von der Neugablonzer Straße. Die Zugänge erfolgen vom Innenhof und den Parkplätzen aus. Die Einsatzzentrale liegt im Erdgeschoss mit Blick in die Fahrzeughalle sowie auf den Innenhof und die Alarmausfahrt.
Die einzelnen Nutzungsbereiche sind deutlich ablesbar, verbinden sich aber durch eine einheitliche Materialität zu einem Architekturensemble. Die geschlossenen Außenwandflächen mit einer profilierten Metallbekleidung bilden einen spannungsreichen Kontrast zu den großflächigen Verglasungen und Toren. Eine funktionale sowie gestalterisch überzeugende Lösung. Die Realisierung erfolgte in drei Bauabschnitten.
Auszeichnugen: DAM Preis 2022 Longlist,
german-architects 02|2021 Bau der Woche
- Any
- 2019
- Client
- Stadt Kaufbeuren
- Equip
- Sebastian Kittelberger, Gregory Leidel, Klaus Knittel, Jannik Lambrecht
- Tragwerksplanung
- tragwerkeplus, Reutlingen
- HLS Planung
- IB Wagner, Reutlingen
- Elektroplanung
- KIENLE Ingenieure, Ostrach











