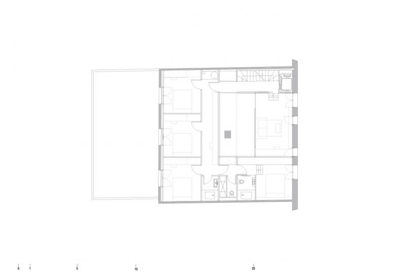
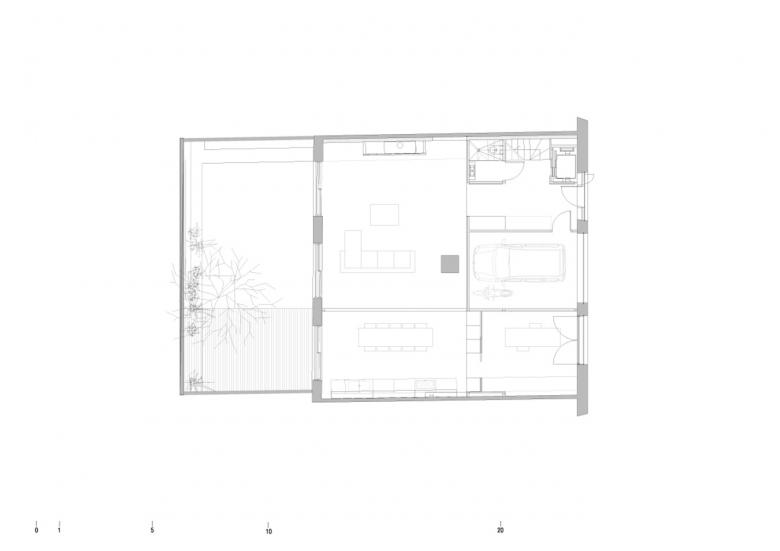
La vaqueria
Last Old dairy farm in Barcelona converted in one single house. High standard finishes. In collaboration with Marc Mazeres Architect.
- Any
- 2013
- Project Status
- Construït
- Equip
- Eva Cotman, Wilson Melo, Miquel Angel Perez, Greek sl
- Co Author
- Marc Mazeres



















