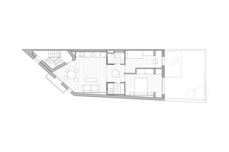
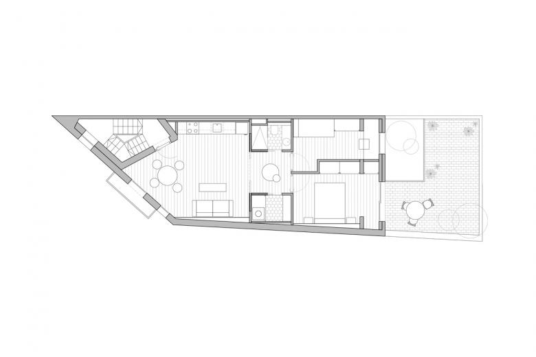
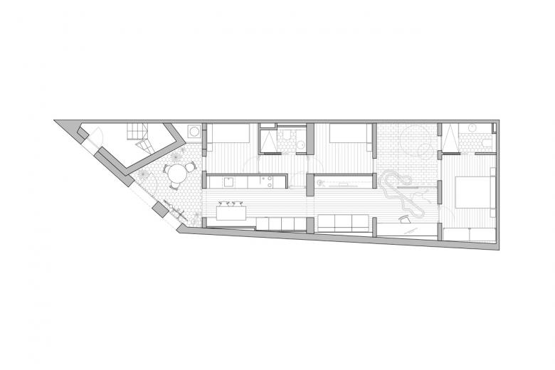
Refurbishment of three apartments with terraces, using minimum cost construction criteria. With integral renovation of the distribution to improve lighting and natural ventilation.
3 apartment renewal
Torna enrere a la llista de projectes- Any
- 2020
- Equip
- Sainza Hervella, Alejandra Pouplana, Sergi Estrella












