SUZUKAKE HONTEN
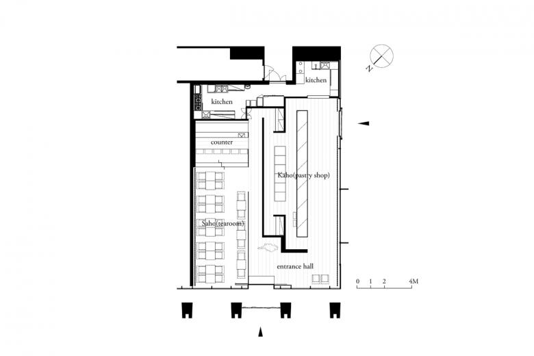
“A Japanese confectionary shop with Japanese black in silence” – A project of a Japanese confectionary shop in Kami-Kawabata, Hakata Ward, Fukuoka City, a historical merchant town. A flagship shop of a Japanese confectionary shop that has Japanese ‘Kaho’, a pastry shop, and Japanese ‘Saho’, a tearoom. Under the idea that the place where pastries are treated is the holiest of holies, the ‘Kaho’, a pastry shop is independent from the crowd, even though the shop is on the main street. And to be conspicuous the existence of pure, simple pastries, there is only one half-floating, nine-meter display case in Japanese black. By using Japanese black plastered wall to all the materials, details and all of the walls, we successfully abused the existence of the display case. In contrast to the ‘Kaho’, I made the ‘Saho’ to an open place with original produced furniture where everything inside can be easily recognized from the street. The entrance was made to be the symbolic existence of expectation for the previous state with a fascination decorated with a five-colored curtain and a profound vermilion-lacquered signboard.
Client: Suzukake
Type of Project: Interior
Use: Japanese Confectionary Shop
Period: Aug 2007 – Jul 2008
Floor Area: 163.2m2
Location: Fukuoka, Japan
Design: Koichi Futatusmata, Koichi Shimohira(CASE-REAL)
Construction: Ob
Lighting Plan: ModuleX FUKUOKA
Manufacture of Furniture: E&Y
- Any
- 2008
- Project Status
- Construït











