CHALET W
The client is a snowboard enthusiast who annually visits Japan from abroad for a short stay. He wanted to create a chalet where he could spend time with his family during his stay and also relax and socialize with his guests. The property was located in the Niseko area, a renowned ski destination, in the midst of a wooded area surrounded by white birches. The client requested maximum floor space possible for the site, a seating area for guests to relax, and an open living and dining area with a window looking out at the symbolic Mt Yotei.
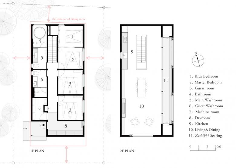
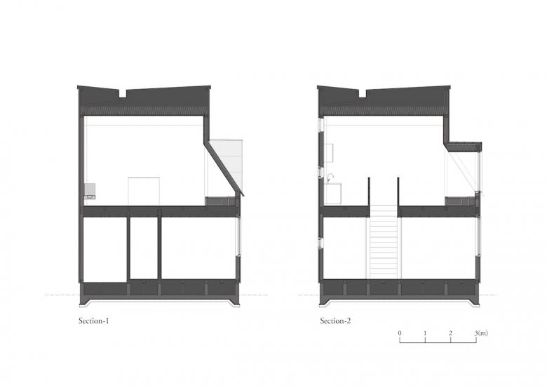
The first issue in the planning process was the form, the volume of the building. The area is one of the heaviest snowfall areas in Hokkaido, and we had to comply strictly with the regulations on the distance of falling snow (the distance from the neighboring land that must be secured based on the slope and height of the roof). However, the site had a short side of 10 meters, meaning that the width of the volume would be very small if the building was to have a gabled roof like a chalet, and in turn, only a narrow building with a low ceiling would be possible. On the other hand, the client wanted a form that was not monotonous and box shaped. Therefore, we decided to create a volume that minimizes the distance of falling snow while securing the floor area and ceiling height as much as possible by incorporating a moderate combination of flat and sloped roofs.
As a result, we were able to create a distinctive interior space that incorporates the sloped surface which serves as the roof outdoors, as well as the ceiling and walls indoors. Two large, deep windows were installed in the sloped area. From here, Mt. Yotei can be seen. In addition to the two large bay windows, a small zashiki seating was designed in one repeating sequence. This allowed us to create a calm space without disturbing the openness of the entire second floor, which serves as the living and dining area.The owner is also an art collector, thus the walls and ceilings were finished in white, and the flooring and fixtures in a saturated color scheme to create a contrast with the view from the windows and the artworks installed. The exterior walls were made of local cedar stained in light gray, and the roof was made of silver-colored steel sheets. Here we aimed to create an architecture that can blend into the snowy landscape of the white birches.
Type of Project: Newly build
Use: Chalet
Period: Aug 2018 – Dec 2019
Structure: Wood frame
Scale: 2 Story
Building Area: 79.2m2
Floor Area: 154.28m2(1F/75.50m2, 2F/78.78m2)
Site area: 198m2
Location: Hokkaido, Japan
Design: Koichi Futatsumata, Yuki Onita(CASE-REAL)
Design Cooperation, Construction: Wakisaka building firm
Lighting Plan: Tatsuki Nakamura(BRANCH LIGHTING DESIGN)
- Any
- 2019
- Project Status
- Construït



























