Magnolia Office

Ahmedabad, India
Fotografia © Sachin Bandukwala

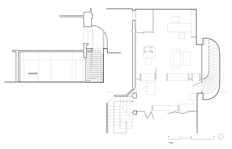
Tucked under an existing house, this office space takes advantage of the daylight with glass partitions and a fiberglass shade that wraps steel members to filter diffuse into the sitting area below.

The stair has been inserted into a light well, making the most of its dimensional constraints to function as both entry and security. Each tread is suspended individually from the beam above and anchored to form a space under shelter but still outside. In the space itself, translucent cabinets mark the division of waiting and meeting, and the simple, clean surfaces are punctuated with colorful and antique embellishments.

Fotografia © Sachin Bandukwala
Fotografia © Sachin Bandukwala
Fotografia © Sachin Bandukwala
Visualització © banduksmithstudio
Visualització © banduksmithstudio
Any
2012
Project Status
Construït

Altres projectes per banduk*smith*studio 

Party Wall Office
Ahmedabad, India
Mt. Abu Retreat
Mt. Abu, India
Wind House
Deesa, India
Regenerate Haveli
Ranchhodpura, India
2x2 terrace
Ahmedabad, India