MB 110 | Bierbrunnen
Der Bauplatz des Projekts befindet sich in Salzburg entlang der Münchner Bundesstraße und erstreckt sich zwischen der Autobahnausfahrt "Salzburg-Mitte" und der Staatsgrenze zu Deutschland. Dieser historisch bedeutsame Standort, bekannt als "Lieferinger Spitz", befindet sich an der entscheidenden Kreuzung der Münchner Bundesstraße, des Forellenwegs und der Lieferinger Hauptstraße. An diesem Punkt vereint sich die vierspurige Straße elegant zu einer dreispurigen Passage, die zum Verkehrsknotenpunkt Salzburg Mitte führt.
Infolgedessen sieht sich der Standort mit erhöhter Fahrzeugaktivität und täglichen Verkehrsengpässen entlang der Hauptzufahrts- und -abfahrtsroute zur und von der Landeshauptstadt konfrontiert. Als Reaktion darauf hat das Land Salzburg eine Erweiterung und Schließung des vierspurigen Straßenabschnitts zwischen der Grenze zu Freilassing und Salzburg Mitte durchgeführt. Parallel zu den vier Fahrspuren wurden beidseitig sorgfältig integrierte Fuß- und Radwege angelegt, die eine Verbindung zwischen Salzburg und der benachbarten bayerischen Enklave Freilassing herstellen.
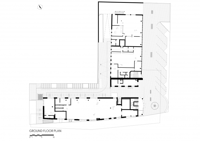
Die kürzlich realisierte architektonische Einheit, in Form eines L konzipiert, inszeniert ein nuanciertes Zusammenspiel innerhalb des städtischen Gewerbegebiets, der belebten Hauptverkehrsstraße und der kleinen, familiären Enklave dahinter. Das Design gestaltet die Etagen terrassiert, harmonisch konzentrisch zu den nach innen gerichteten, lärm- und emissionsgeschützten Freiflächen der Wohnungen. Durch eine geschickte Volumenplatzierung schützt die neue Struktur nicht nur ihre eigenen Wohnräume vor Straßenemissionen, sondern bildet auch eine schützende Pufferzone für die ruhige, intim strukturierte Nachbarschaft im Hintergrund, wodurch die Gesamtsituation verbessert wird.
Angrenzend an die Münchner Bundesstraße und den Verkehrsknotenpunkt projiziert sich das Gebäude selbstbewusst und definiert den städtischen Raum entlang der Verkehrsachse in einem dreidimensionalen Kontext. Die aufwendig gestalteten Vorsprünge tragen wesentlich zur Gesamtausstrahlung und zur Schaffung eines erkennbaren "Landmarks" bei, das der städtebaulichen Bedeutung dieses Ortes gerecht wird. Die städtebauliche Kante des angrenzenden Grundstücks, insbesondere des benachbarten Gebäudes in Richtung Freilassing, wird aufgenommen und durch eine bewusste Krümmung im Gebäude in den weiteren Straßenverlauf überführt. Die Volumenprojektion nimmt in Richtung der Kreuzung zu und verzichtet bewusst darauf, sich weiter in Richtung der Bebauung auf der gegenüberliegenden Seite des Forellenwegs zu neigen.
Zusätzlich ist der neu geschaffene Fuß- und Radweg in diesem Bereich teilweise überdacht und bildet dadurch einen geschützten, galerieartigen Bereich für die sich im Erdgeschoss befindenden Geschäftsräume. Dies steigert nicht nur die Gesamtattraktivität der Straße, sondern bereichert auch die erlebte Qualität umweltfreundlicher Mobilität. Das Gebäude ist als vielseitiges städtisches Haus konzipiert und beherbergt verschiedene Büroeinheiten, Geschäftsräume sowie 34 Wohnungen. Ein vorhandenes Gebäude wird bis zum dritten Vollgeschoss überbaut.
Mit dem im Zuge des Projekts verfeinerten Mobilitätskonzept und einer nahegelegenen Bushaltestelle stehen den Nutzern des Gebäudes vielfältige Möglichkeiten zur Verfügung, emissionsarme Verkehrsmittel als einfache Alternative zum Auto zu nutzen. Das Bauvorhaben ermöglicht die Erweiterung der Münchner Bundesstraße um eine zusätzliche Spur für Kraftfahrzeuge, Fahrräder und Fußgänger auf beiden Seiten der Straße, was aufgrund der Positionierung vorhandener Gebäude auf der künftigen Verkehrsfläche sonst nicht möglich wäre.
- Any
- 2023
- Client
- VO Immobilien
- Equip
- Horst Michael Lechner, Christine Lechner, Lukas Ployer, Paul Lechner
- Baumanagement
- Bleierer Baumanagement GmbH
- Statiker
- Thomas Forsthuber
- Ausführunsplannung
- HB2 Projektmanagement GmbH
- Bauunternehmen
- Kreuzberger Bau Salzburg GmbH
























