Gold Coast Villa, Shantou
Project name: Gold Coast Villa, Shantou
Design firm: AD ARCHITECTURE (http://www.arch-ad.com/)
Email: [email protected]
Chief designer: Xie Peihe
Design team: AD ARCHITECTURE
Location: Shantou, Guangdong, China
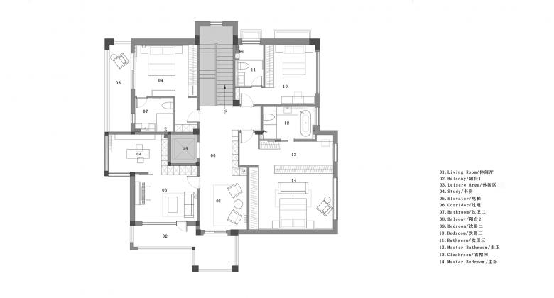
Area: 500 square meters
Main materials: stone, Italian sintered stone, handmade paint, wood veneer
Start time: February 2021
Completion time: May 2022
Photographer: Ouyang Yun
01/
Background
The project is a villa located in the coastal city of Shantou. The local fruit and vegetable market is always bustling from 1 am to 5 am. While most people are sleeping soundly, the villa's owners are busy in the market, living a life upside down day and night. For this project, AD ARCHITECTURE intended to create a healing "harbor", a cozy home full of love. The home is expected to slow down the fast-paced life of the family, and to be a container of cheers and laughter. At the moment when the owners open the door, their tiredness will be suddenly relived.
02/
Restrained "Mediocrity"
The villa's original facades were formed by sandstone masonry and lacked maintenance for a long time, causing great difficulties in later upkeep. Considering various limitations, the design team transformed the decorative lines and colors of the architectural facades. To some extent, the limitations brought new opportunities, and the design intervention helped create new landscapes and open up the space. Through facade renovation, the villa appears simple and bright, presenting a strong modern touch.
Located in the coastal villa area in Shantou, Guangdong, the project is about half an hour's drive from the downtown. The thirty minutes' drive takes the house owners back to their healing home after ending the busy hours in the early morning. For this project, AD ARCHITECTURE focused on creating a comfortable living place tailored for the occupants, a home with restrained comfort and unique "mediocrity".
French windows facing the garden introduce natural light into the interior, and guide occupants' sight lines to the outdoor landscape. The open living and dining area integrates into nature, which evokes infinite imagination and also strengthens the connection between the occupants and the space.
The simple sintered stone floorings, natural stone wall panels, leather sofas from French brand Roche Bobois, and wood veneers with soft edges, all echo the outdoor natural landscape and set a soft tone for the home where the occupants can feel a sense of security.
The living and dining area emphasizes a sense of enclosure of the home and the intimacy among family members. Revolving doors are applied at the entrance of the dining space. Moreover, the design team replaced the villa's original windows with large-scale glass to introduce outdoor greenery into every interior space. The large areas of glazing enhance visual transparency, whilst also bringing a unique spatial experience.
The daylighting and ventilation in the basement is a focus of the design. By transforming the skylight, the daylighting area and ventilation are greatly enlarged. Meanwhile, the convection of air also effectively solves the humidity problems in the basement.
Staircases connecting each floor of the space are the "core" of the project. In the stairwell space, sunlight falls down on clean grey sintered stone flooring, unadorned natural stone boards and wooden veneers, revealing a harmonious and natural ambience emphasized throughout the design. The design team hoped to slow down time in this home, and to let the occupants feel comfort, purity and tranquility.
AD ARCHITECTURE effectively arranged the daylighting in different directions. Light at different seasons and time periods is allowed to penetrate into the interior through varied openings in the house.
In Chaoshan where the project is located, drinking tea is the most distinctive living habit and the most respectful way to entertain guests. The tea room of this home combines delicate textures with landscapes, and evokes communication through simple design expressions. The large French window provides a sweeping view of the outdoor scenery, and enables the harmonious fusion of landscapes indoors and outdoors.
The design of bedrooms balances openness and privacy, light and shadows. The concise and orderly space creates a peaceful environment. The open living area and undisturbed resting areas provide a restraining and comfortable atmosphere.
Busyness, bustle and noise are all blocked out of the door. With a series of implicit and unpretentious elements, AD ARCHITECTURE created an ideal home for free communication and a shelter from the hustle and bustle of the city.
- Any
- 2022



















































