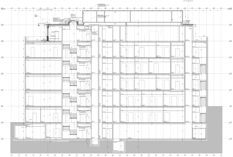
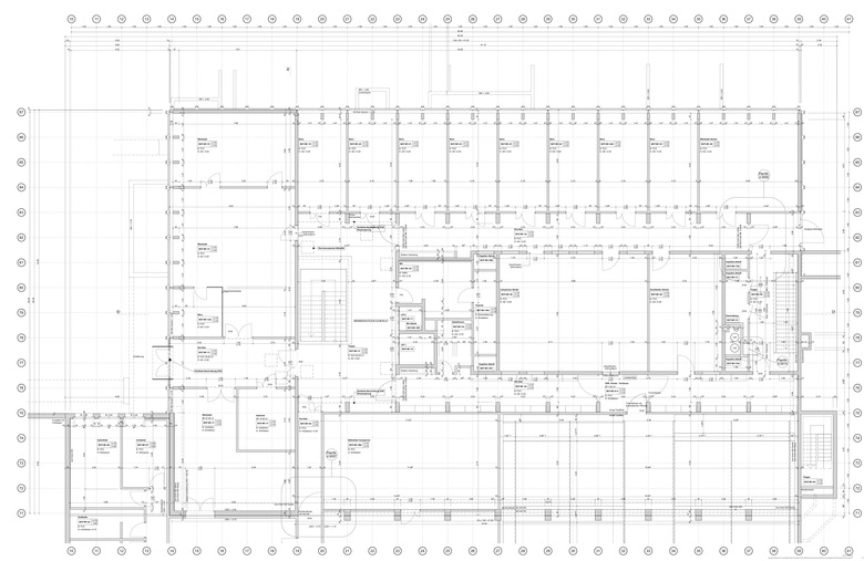
Sanierung Instituts- und Laborgebäude Botanischer Garten
2015: Neue Abluftzentrale (Aufstockung) auf dem Institutsgebäude mit Sanierung der Flachdächer
2016: Sanierung von Haustechnik und Fluchtwegen (Brandschutztechnische Ertüchtigung der Treppenhäuser)
2017: Sanierung Herbarium und Technik
- Any
- 2015


