Neubau Wohnsiedlung Brunnmatt
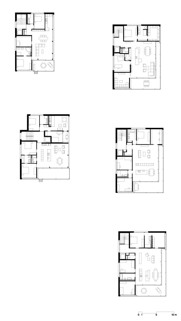
Das Brunnmattquartier ist geprägt von traditionellen und modernen Bauten in Holz- und Massivbauweise. Das architektonische Konzept sieht vor, zwischen diesen Gebäudearten zu vermitteln.
Während die Häuser auf der Ost- und Nordseite geschlossene, verputzte Fassaden aufweisen, öffnen sie sich sonnseitig mit grossformatigen Glas- und Holzpartien.
Im Grundriss bildet sich dieses Prinzip ebenfalls ab: die Zimmer spannen winkelförmig einen grosszügigen Wohnraum auf, der seinen Abschluss in der sonnigen, attraktiven Terrasse findet.
- 建筑师
- Beda Dillier
- 年份
- 2013
- Project Status
- 已建造
- 团队
- Keith Fletcher, Erich Vogler, Julian Omlin
- Fotografien
- Architekturbüro Beda Dillier, Sarnen
相关项目
杂志
-
-
-
-
Un despatx madrileny signa un visionari catalitzador urbà en West Palm Beach
Andrea Pala | 29.11.2018 -
L'arquitectura de Francis Keré en escena en el Museu ICO de Madrid
Andrea Pala | 28.10.2018













