Mehrfamilienhäuser Wilermatten
Die Mehrfamilienhäuser Wilermatten in Turgi wurden im Jahr 1984 erstellt. Zwei Häuser liegen nebeneinander in einer Ebene, das dritte Haus staffelt sich im Volumen und Höhe entlang des ansteigenden Terrains Richtung Süden nach oben.
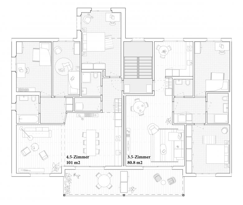
Die zwei baugleichen Häuser werden in der Grundrissfigur verändert, damit effiziente 4.5-und 3.5-Zimmerwohnungen entstehen. Dank der neuen Typologien vergrössert sich das Raumgefühl in den Wohnungen. Die Balkone sind mit neuen Geländern und Pflanzenberankung freundlicher gestaltet. Die Sanierung erfolgt in entmietetem Zustand.
Die Aussenhülle wird aufgefrischt und instand gestellt.
Das abgetreppte Haus erfährt keine Grundrissänderungen; hier werden lediglich Küche und Nasszellen sowie die Haustechnik erneuert, weil die Sanierung in bewohntem Zustand erfolgt.
Die gesamte Siedlung wird nach Minergie Systemerneuerung zertifiziert.
- 年份
- 2019- 2022
- 客户
- Pensionskasse Schaffhausen
- 团队
- kathrinsimmen Architekten





