Erweiterung Alters- und Pflegeheim Bachwiesen

Ramsen, 瑞士
可视化 © kathrinsimmen Architekten

Ein eingeschossiges Volumen im Osten schiebt sich auf den Vorplatz und ordnet die Zugangssituation neu. Ein zweigeschossiges Volumen mit Vor- und Rücksprüngen an der Südfassade schliesst an den C-förmigen Bestand an und ergänzt diesen zu einem O mit innen liegendem Hof.

Die Zufahrt für Anlieferung und Personal mit ist vom Besucher-/Bewohnerzugang getrennt. Besucher und Bewohner werden entlang einer Baumreihe optisch zum gut sichtbaren Haupteingang geführt. Der Hof hat einen introvertierten, malerisch beschaulichen Charakter. Zwischen den üppigen, geschwungenen Pflanzflächen sind kurze, anregende Rundgänge möglich. Die Gestaltung des Gartens im Westen und entlang der südlichen Parzellengrenze weckt Bilder an die freie Landschaft und bäuerliche Landwirtschaft. Ein geschwungener Rundweg mit klarer Lenkung, eingebettet in das leicht modellierte Terrain, führt an Obstbäumen, Blumenwiesen und Nutztieren vorbei.

Das Altersheim wird im übertragenen Sinn als Dorf im Dorf verstanden: Das Gefüge aus unterschiedlichen Volumen und Dachformen zeugt von der zeitlichen Entstehung des Heims, die Vielfalt der Ausblicke und Bezüge und die verschiedenen Wohntypologien in den Zimmern verweisen auf das frühere Leben der Bewohner und deren unterschiedliche Wohnbiografie. Die insgesamt 35 Zimmer haben unterschiedliche Grössen und Formen und bieten unterschiedliche Aussichten.

可视化 © kathrinsimmen Architekten
Situation im Modell
可视化 © kathrinsimmen Architekten
图纸 © kathrinsimmen Architekten
可视化 © kathrinsimmen Architekten
Bewohnerzimmer
可视化 © kathrinsimmen Architekten
Grundriss Bewohnerzimmer
图纸 © kathrinsimmen Architekten
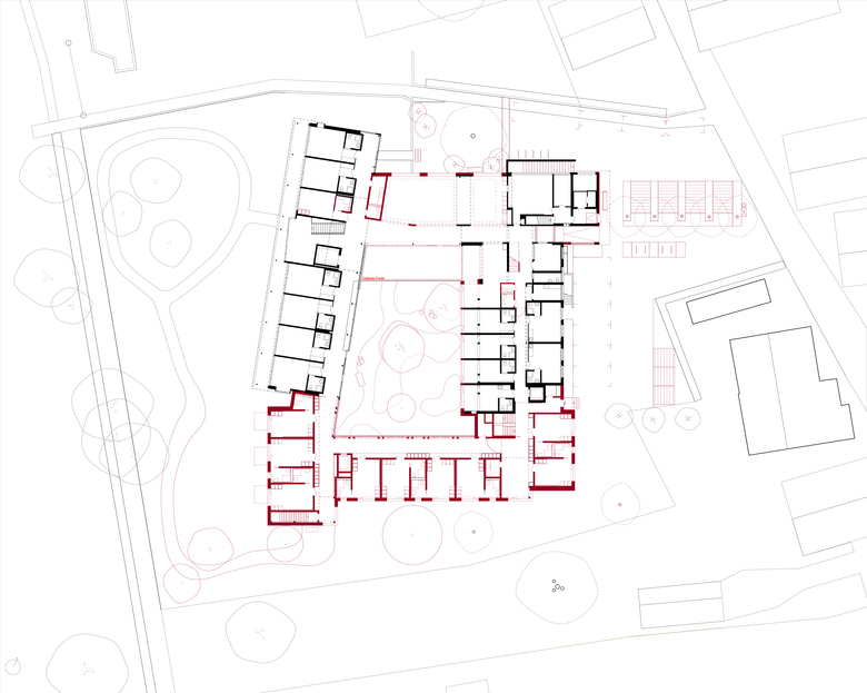
Grundriss Erdgeschoss
图纸 © kathrinsimmen Architekten
年份
2020
客户
Politische Gemeinde Ramsen
Architekt & Generalplaner
kathrinsimmen Architekten ETH SIA
Bauingenieur
SJB Kempter Fitze AG
Landschaftsarchitekt
planivers Landschaftsarchitekten AG

以下出品方的其他项目 kathrinsimmen Architekten 

Ersatzneubauten Lerchenweg
Kloten, 瑞士
Mehrfamilienhaus Maiacher
Volketswil
Erweiterung Altersheim Heinrichsbad
Herisau, 瑞士
Erweiterung Alters- und Pflegeheim Seegarten
Hünibach, 瑞士
Umbau Loft 17
Frauenfeld, 瑞士