MG9 - Dachaufstockung Margaretenstraße
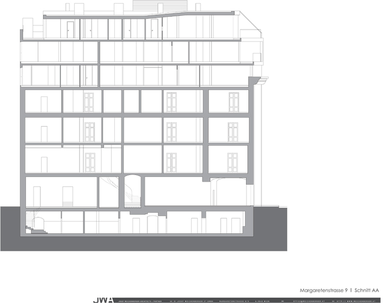
Auf ein viergeschossiges Gründerzeithaus wird ein dreigeschossiger Neubau aufgesetzt.
Aus konvergierenden Linien der Straßenfluchten, die an der Kreuzung Operngasse/Margaretenstraße zusammentreffen, entstand ein komplexes, geometrisches Bezugsgerüst, in das die Dachaufstockung eingewoben wird. In diesem Gerüst aus Bezugslinien entwickelt sich die Dachaufstockung als ein mäandrierendes Band, das schließlich in das bestehende Dachgesims mündet, und den Neubau mit dem Bestand verschmelzen lässt.
Bauplastik, Glasfronten und Terrassen spiegeln die städtebauliche Situation der hochwertigen Lage wider, und spielen mit den verschiedenen Sichtbezügen aus den Straßenfluchten und der Wiener Dachlandschaft.
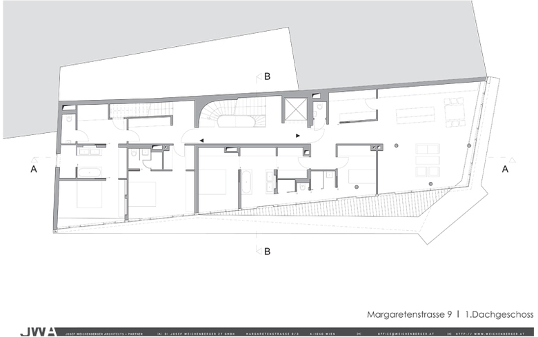
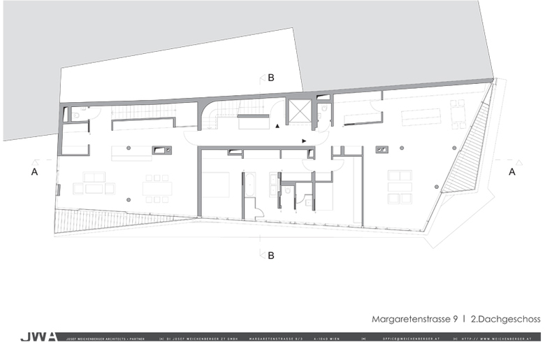
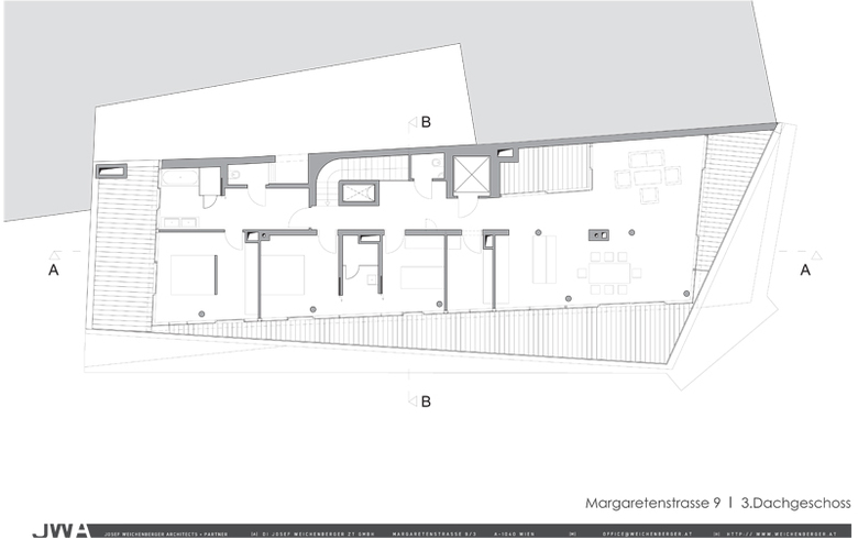
Wie der Baukörper selbst, entwickeln sich auch die Grundrisse der vier großzügigen Wohnungen (davon eine Maisonette) aus den Richtungen der Stadtstruktur, zu der sie sich großzügig öffnen.
- 年份
- 2012
















