Überbauung in Lauffohr
Die Grösse der Neubebauung weckt, in Verbindung mit der eher heterogeny bebauten Umgebung und der Lage in der «zweiten Reihe» das Bedürfnis, eine eigene Welt zu gestalten, die dank einer klaren und identitätsstiftenden Ausformulierung sowohl den zukünftigen Bewohnerinnen einen wohnlichen und attraktiven Ort bietet als auch für die Gemeinde ein Stück Ortschaft entsteht. Der öffentliche Durchgang sorgt dabei für Begegnungsmöglichkeiten. Eine klare Zonierung und Nutzungszuordnung der einzelnen Bereiche garantierten eine eindeutige Trennung zwischen öffentlich und privat.
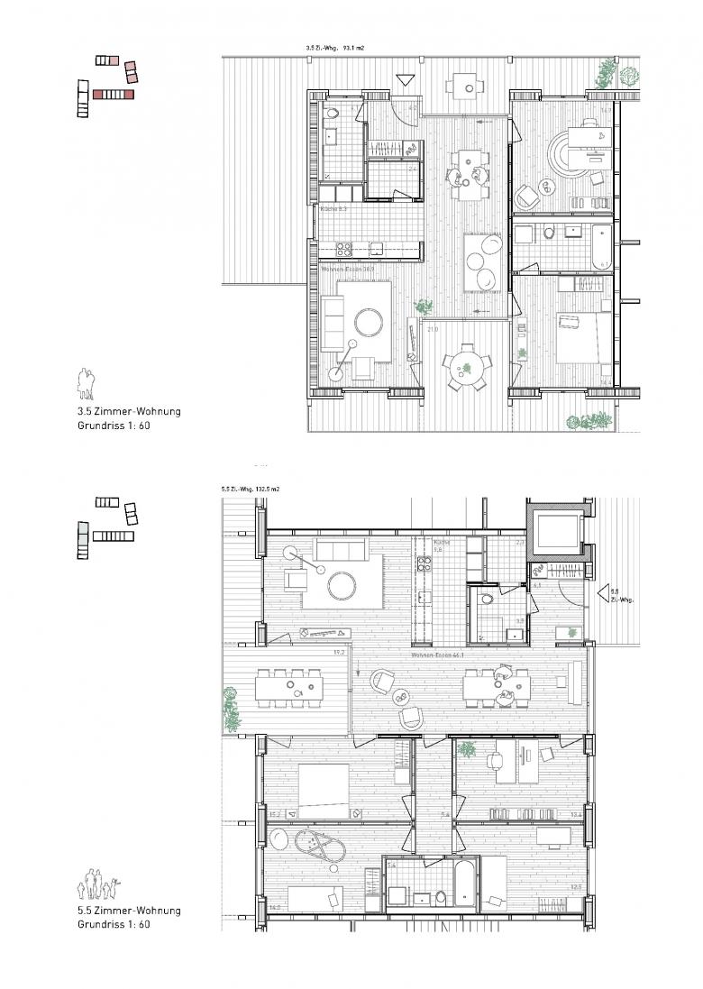
Das zweite entwerferische Anliegen ist, die zur Verfügung stehenden Gartenflächen möglichst vielfältig nutzbar anzubieten. Dem Problem, dass bei einem dreigeschossigen MFH mit Attika nur die Erdgeschosswohnungen von einem Garten profitieren und die Privatheit dieser Aussenräume nur bedingt gegeben ist, begegnen wir mit einer Mischung aus Geschosswohnungen und Reihehaustypen. Die Geschosswohnungen besetzten die Gelenkpunkte der Bebauung, so dass wir mit lediglich drei offenen Treppenhäusern mit Lift auskommen. Die angrenzenden, in die Bauform integrierten mehrgeschossigen Wohneinheiten verfügen über einen Vorgarten und einen eigenen Gartenbereich. Neben dem grosszügigen, gemeinschaftlichen Hofraum entstehen weitere differenziert nutzbare Aussenräume. Auch das Bestandsgebäude wird über die öffentliche Durchwegung und die offene Erschliessung in die gesamte Bebauung integriert.
Eine alles verbindendes Grundstruktur mit überdachter Vorzone und entsprechenden Balkonbereichen integriert die verschiedenen Wohnformen und bildet eine Einheit.
- 年份
- 2022
- 客户
- Immo Treier AG
- Landschaftsarchitekt
- SKK Landschaftsarchitekten AG
- Visualisierung
- Nightnurse Images AG



