Umbau des ehemaligen Kaufhauses Hassel | Realisierungswettbewerb | 2. Preis

Hamm (Sieg), 德国
Perspektive
可视化 © .pg1

Ein Baustein der Ortskernsanierung:
Seit rund 30 Jahren bemüht sich die Gemeinde Haag (Sieg) um eine Sanierung ihres Ortskerns. Die Anstrengungen haben bereits Erfolge gezeitigt, unser Umbau und unsere Erweiterung des ehemaligen Kaufhaus-Hassel-Ensembles wird dazu ein integraler und gleichzeitig ein weiterer integrierender Baustein sein. Unser Entwurf stellt die ursprüngliche Qualität des Gebäudes wieder her, wobei dessen gründerzeitliche Anmutung in Maßstab, Materialität und Proportion die neuen Ergänzungsbauten in zurückhaltender und reduzierter Form übernehmen. Damit wird gemäß den Intentionen des Wettbewerbs „Mehr Mitte bitte“ die spezifische regionale Identität gestärkt, während mit attraktiven Nutzungen – insgesamt neun qualitativ hochwertige Wohnungen, Flächen für medizinisches Gewerbe und einen zu Verweilen einladenden Innenhof - der Ortskern aufgewertet wird. Die gebaute Erinnerung an das Kaufhaus und sein neuer Gemeinschaftsraum wird in Zukunft wieder Dreh- und Angelpunkt des gemeindlichen Lebens in Hamm sein. Allerdings machen die doch recht komplexen Bedingungen – heterogenes Umfeld, Höhenversprünge, Erhalt der beiden Ziegelhäuser, Erhalt der Eigentümerwohnung – umfangreicherer Interventionen nötig, als dies in der Auslobung angedacht ist.

Das Ensemble:
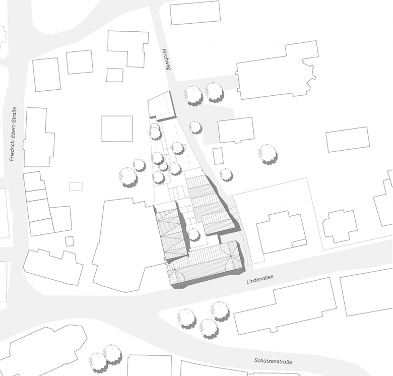
Das Zentrum der neuen gemeinschaftlichen Wohnanlage bildet ein Innenhof, um den sich Bestandsgebäude und Neubauten gruppieren. Er ist die kommunikative Mitte des Ensembles. Eine breite Treppe, die an parallel verlaufende Treppe zur Kirche erinnert, aber als Freitreppe mit Bepflanzungsmöglichkeiten und integrierten Sitzflächen als Freitreppe und Begegnungsort konzipiert ist, erschließt den Hof von Norden kommend. Die zweigeschossigen Hallenanbauten werden abgetragen, den neuen Innenhof flankiert an der Ostseite des Grundstücks ein dreifach zurückgestaffelter Baukörper, der an drei aneinandergereihte, versetzt stehende Giebelhäuser denken lässt. Die Giebel finden dabei ihre städtebauliche Entsprechung – und Überhöhung im doppelten Sinne - in drei großen Gauben, die in das Dachgeschoss des bestehenden Seitenflügels eingebaut aufgesetzt werden, dieses komfortabel nutzbar machen und großzügig belichten. Die neuen Dachformen, die darüber hinaus mit denen des Bestandsbaus korrespondieren, machen das neustrukturierte Ensemble zu einer wiedererkennbaren Landmarke, die sich zwischen Kirche, VG-Rathaus, Hotel „Alte Vogtei“ und Hermes-Fleischmarkt städtebaulich behaupten kann.
Entsprechend der repräsentativen Außenwirkung wird der neue Eingang ebenerdig an den linken Querriegel des Vorderhauses entlang der Hauptstraße gesetzt. Die Erschließung der Wohnanlage erfolgt über einen zentralen, zum Innenhof hin gelegenen Treppenraum mitsamt barrierefreiem Aufzug. Über einen außenliegenden Steg auf Ebene des ersten Obergeschosses werden auch die Neubauten erschlossen, zudem überbrückt der Steg die Höhendifferenz im Gelände, sodass die Anwohner ohne Barrieren von der Haupterschließung zum rückwärtigen Grundstücksbereich gelangen können.

Nutzungen:
Die gewerblichen Nutzungen befinden sich im Erdgeschoss der Bestandsbauten. Im Vorderhaus ist eine vom Eingangsfoyer erschlossene Apotheke vorgesehen. Die Arztpraxis (alternativ Büroeinheit) im Osten wird über die Rückseite erschlossen. Auf dem leicht erhöht liegenden, per Treppe und Aufzug erreichbaren Hofniveau schlagen wir im Seitenflügel eine Praxis für Physiotherapie vor. Im geplanten Neubau, in dessen vorderen Bereich ist eine sich zum Innenhof öffnende Gemeinschaftsküche vorgesehen, die den Anwohnern als kommunikativer Treffpunkt und als Ort für Festivitäten und ähnliches dienen kann. Der hintere, zum Teil ins Gelände eingegrabene Teil des Neubaus nimmt Kellerräume mit Lagermöglichkeiten in sich auf, die den Wohneinheiten der Anlage zugeordnet sind.
Die übrigen Geschosse aller Gebäudeteile dienen dem Wohnen: Sieben Wohneinheiten befinden sich im ersten Obergeschoss, davon zwei für Rollstuhlfahrer konzipierte Wohnungen im Seitenflügel unter der bestehenden Wohnung der Eigentümerin. Zwei Wohnungen befinden sich im Vorderhaus, drei in den neu errichteten Giebelhäusern. Die Dachgeschosse der beiden Bestandsgebäude nehmen zwei großzügig geschnittene Wohneinheiten ein. Das Ensemble schafft qualitativ hochwertigen Wohnraum von unterschiedlichen Größenzuschnitten, die sich an den Bedürfnissen potenzieller Bewohner orientiert sind. Sowohl in der 50qm-Wohnung mit Loggia als die Penthouse-Wohnung mit Weitblick von der Dachterrasse bieten gleichwertige Offenheit und Großzügigkeit. Im Norden des Ensembles sind insgesamt 13 teilweise überdachte Parkplätze vorgesehen, die den Anwohnern und den gewerblichen Nutzungen zur Verfügung stehen.

Materialität und äußere Erscheinung:
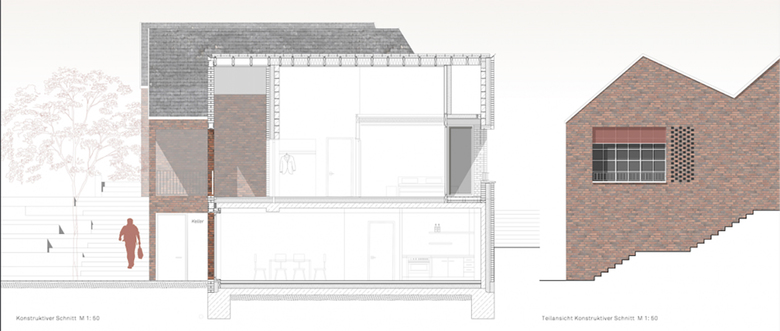
In der äußeren Erscheinung des neuen Ensembles bildet sich ein respektvoller Umgang mit dem historischen Bestand ab. Die Backsteinfassaden der bestehenden Gebäudeteile werden aufgearbeitet. So sie überstrichen wurden, werden sie, um die ursprüngliche Farbigkeit wieder zum Vorschein kommen zu lassen, sandgestrahlt. Bei allen baulichen Ergänzungen, etwa die Fassaden der Anbauten wie auch die Pflasterung des Innenhofes und der Freitreppe wird ein in Rottönen changierender Klinker im liegenden Format verwendet – eine zeitgemäße Interpretation der Bestandsfassaden. Die bestehenden Stahlbauteile und Fensterrahmen sowie die neuen Geländer und Absturzsicherungen in Metall bekommen einen farblich passenden dunkelroten Anstrich in DB 301. Der Dialog von Alt und Neu bestimmt die Anmutung des neuen Ensembles, das die Ortskernsanierung in kleinerem Maßstab abbildet.

Auszug aus dem Protokoll des Preisgerichts (2.Preis):
"Durch die Anordnung dieser neuen Baumasse entsteht ein in seinen Proportionen angemessener privater Innenhof, dem im Erdgeschoss Nebenräume und ein kleiner Gemeinschaftsraum zugeordnet sind... Die Qualität der Arbeit sieht das Preisgericht im insgesamt einfühlsamen Umgang mit dem Bestand."

Lageplan
图纸 © .pg1
Skribbles
图纸 © .pg1
Wohngrundrisse
图纸 © .pg1
Straßenansicht
图纸 © .pg1
Seitenansicht
图纸 © .pg1
Detailschnitt
图纸 © .pg1
团队
Benjamin Czeka M.A., Nina Serwein M.A., cand. B.A. Patricia Wegener

以下出品方的其他项目 architekturbüro .pg1 

Finklerhof in Godramstein | Ideenwettbewerb | 1. Preis
Godramstein, 德国
S4 Wohn- und Gewerbeobjekt Staubörnchenstraße 4 | Realisierungswettbewerb | 2. Preis
Kaiserslautern, 德国
Sparkassenfiliale in Erlenbach
Kaiserslautern | Erlenbach, 德国
Modernisierung "Central City Cinemas" im denkmalgeschützten Bestand
Kaiserslautern, 德国
Landesgartenschau Landau | Umsetzung des Aussichtsturms und der Sporthalle
Landau, 德国