S4 Wohn- und Gewerbeobjekt Staubörnchenstraße 4 | Realisierungswettbewerb | 2. Preis
Konzept:
Als Ersatz für das Wohn- und Geschäftshaus aus den 50er Jahren nimmt der Neubau eine entscheidende Rolle hinsichtlich der Aufwertung des Quartiers war
Der Entwurf vermittelt zwischen der Geschlossenheit der Fassade des direkten Nachbarn im Westen und der zu langgezogenen Balkonen aufgelösten Fassade des Gebäudes Ecke Staubörnchen/Richard-Wagner-Straße.
Qualitativ hochwertige Wohnungen und großzügige, offene Strukturen für die medizinischen Einrichtungen in den unteren Geschossen sprechen eine zeitgemäße Architektursprache; die Fassade, die durch den Kontrast von Betonsockelgeschoss und der strukturierten, von Vor- und Rücksprüngen geprägten Holzfassade lebt, spiegelt dies nach außen wider
Minimierte Erschließungsflächen sichern eine wirtschaftliche Raumausnutzung
Baukörper / Ensemble:
Als Blockrandbebauung schließt der Neubau städtebaulich konsequent an den Bestand an akzentuiert das Ensemble mit einem zeitgemäßen architektonischen Ansatz. Vier Geschosse zuzüglich Staffelgeschoss fügen sich höhenmäßig in den vorhandenen Straßenzug. Das Einrücken von der seitlich verlaufenden Gasse erlaubt die Wahrung des Brandabstandes zum Nachbargebäude Ecke Richard-Wagner-Straße und damit die Öffnung für Belichtung und Belüftung des Neubaus hin zur Ostseite. Der Treppenturm mit Brandwand an dieser Fassadenseite ermöglicht die optimale Platzausnutzung des Grundstücks; der Aufzug sichert die barrierefrei Erschließung des Gebäudes.
Die Staffelung in der Höhe sowie die eingeschnittenen Loggien nehmen dem Gebäude die massive Wirkung durch das Aufbrechen der Außenhülle und erlauben großzügige Belichtung der Wohnungen und Praxen.
Materalität und äußere Erscheinung:
Neue Impulse und gleichzeitig ökologische Nachhaltigkeit durch die mehrgeschossige Holzbauweise, die sich auch in der Fassade attraktiv abbildet
Kontrastierend dazu das Sockelgeschoss und der Erschließungsbau in Sichtbeton; die Dualität der Materialien steht für Reduktion, Wertigkeit und Stabilität
Nutzung:
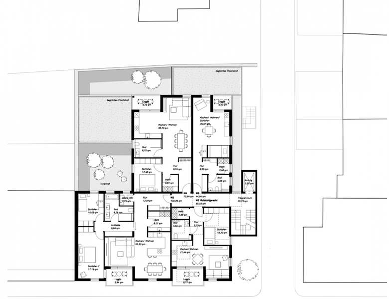
Die geforderten Nutzung entsprechend wurden die medizinischen Einrichtungen in den beiden unteren Geschossen vorgesehen:
Die Physiotherapie-Praxis im EG auf einer Ebene mit zugeordneten Freibereichen für Training und Therapie. Die Arztpraxis im 1. OG mit separatem Zugang, mit der Möglichkeit der späteren Umnutzung zu Wohnungen, ebenfalls auf einer Ebene organisiert.
Vom 1. bis zum 4. OG wurden insgesamt 11 Wohneinheiten geplant, eine separat erschlossene Wohnung im 1. OG, jeweils vier Einheiten im 2. und 3. OG sowie 2 Wohnungen im Staffelgeschoß
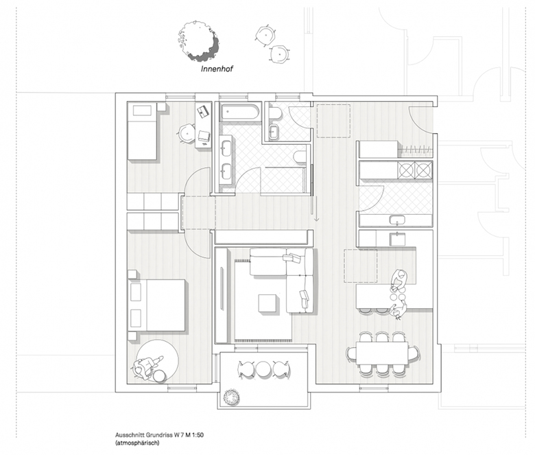
Wohnungsgrößen zwischen 45 bis 120 Quadratmeter, als Ein-, Zwei- und Dreizimmerwohnungen mit großzügig fließenden Grundrissen, durchgehend mit Loggien und zum Teil Dachterrassen zum Außenraum hin geöffnet. Stauraum und Hauswirtschaftsräume innerhalb aller Wohneinheiten, sowie separate Keller- bzw. Kellerersatzräume außerhalb der Wohnungen.
Gemeinschaftsterrasse mit Spielbereich für Kinder zum gemeinsamen Aufenthalt im 4. OG - Tiefgarage mit 16 Stellplätzen im Untergeschoß mit Zufahrt von der seitlichen Gasse über einen platzoptimierenden PKW-Aufzug.
Wirtschaftlichkeit in Errichtung und Betrieb
Bauphase:
Die Bauweise ermöglicht durch den hohen Grad der industriellen Vorfertigung eine kurze Bauzeit und geringe Anlagenkosten durch Fernwärme und dezentrale Lüftung.
Betrieb:
Geringe Betriebskosten sind aufgrund der energieeffizient geplanten Gebäudehülle und Haustechnik (Einzelraumlüftung mit Wärmerückgewinnung, Fernwärme, Stromgewinnung durch PV-Anlage für die Haustechnik) und deren geringen Wartungskosten zu erwarten.
Tragwerk:
Stahlbetonbau UG+EG
UG: ST-Ortbeton. Wände und Stützen auf Einzel- oder Streifenfundamenten. Bodenplatte gleitend gelagert. Dehnfugen mit Dehnfugenbändern abgedichtet
EG: Aussenwände als ST-Sichtbeton-Sandwichelemente. Sonstige tragende Wände aus Ortbeton in Sichtqualität
Holzbau 1. - 4. OG
Tragende Wände sind wie auch die Deckenelemente aus BSP-Tafelbauelementen
Die Spannrichtung der BSP-Decken ist in verschiedenen Geschossen um 90° gedreht, sodass sich die Lasten in Gebäudelängs- und Querrichtung verteilen. Durch lineare Auflager werden die Lasten außerdem über eine große Länge eingeleitet, was ein simples Fügen der BSP-Holzelemente ermöglicht. Wände und Decken liegen voll aufeinander auf und sind kreuzweise diagonal miteinander verschraubt.
Schichten-Aufbau
Erdgeschoss: Sichtbeton- Sandwichelemente
Obergeschosse: Die tragende Schicht der Brettsperrholzwände bildet gleichzeitig die Luftdichteschicht. Die Dämmschicht ist einfach geometrisch außen auf die Wände aufgebracht
Den Witterungsschutz übernimmt die vorgehängte hinterlüftete Holzfassade, die stockwerksweise durch Brandschürzen getrennt sind. Die Anforderungen des Schall- und Brandschutzes an die BSP-Geschossdecken werden durch einen schwimmenden Estrich und (bei Erfordernis) durch eine unterseitige Verkleidung aus Gipsfaserplatten erfüllt
Den Sonnenschutz übernehmen Schiebeläden und im Bereich der Loggien textile Screens
Vorfertigung und Montage:
Erdgeschoss: Sichtbeton-Sandwichelemente
Wände und Decken aus abgebundenem BSP-Holztafeln und mittels diagonaler Verschraubung und Stahlverbindungsteilen zu einem kastenartigen Tragwerk gefügt. Der Ausschnitt von Fenster- und Türöffnungen erfolgt im Werk. Nach Fertigstellung des Rohbaus werden die Fenster und der Sonnenschutz eingebaut, die Balkonplatten abgedichtet und die luftdichte Schicht durch Ankleben der Tafelstöße hergestellt, die Dämmung aufgebracht und die hinterlüftete Holz-Vorhangfassade montiert. Fußbodenaufbau und Kapseln von Wänden und Decken erfolgen konventionell vor Ort.
- 团队
- Benjamin Czeka M.A., Nina Serwein M.A., cand. arch. Isabelle Schmidt, Dipl. Ing. (FH) Michael Burghaus




