3. Rang Planerwahlverfahren Ersatzneubau Zähringerstrasse

Bern

Im lebendigen Berner Länggassquartier soll ein, in den 1970er erbautes, Mehrfamilienhaus abgerissen und neugebaut werden. Wir schlagen ein nachhaltiges Konzept vor, dass Teils die bestehende Struktur erhält und mit vier neuen Geschossen in Holzbauweise ergänzt wird. Das neue Haus bietet ein vielfältiges Angebot an Gewerbe, Gemeinschaft und unterschiedlichen Wohnformen.

Der Rohbau wird im UG, EG und 1.OG bis auf die Fassadenstützen erhalten. Durch die klare Struktur und die angemessenen Raumhöhen ist der Erhalt dieser Geschosse sinnvoll. Die bestehende Betonstruktur und die neuen Geschosse mit vorfabrizierter Holzkonstruktion bilden eine bereichernde Vielfalt, sowohl in der Grundrissdisposition als auch in der atmosphärischen Wirkung der Wohnungen.

Für die drei erhaltenen Geschosse gilt die Besitzstandesgarantie. Die vier neuen Geschosse hingegen haben die geltenden baurechtlichen Vorgaben einzuhalten. Es resultiert eine neue volumetrische Erscheinung, die zusammen mit den Erkern den Ausdruck vom Haus prägen. Diese feinen Verschiebungen bilden angemessene Fassadendimensionen und binden das Haus in das Wohnquartier ein. Die neue Fassade übernimmt den Rhythmus vom Bestand, strahlt aber einen identitätsstiftenden, wohnlichen Charakter aus und verbindet Alt mit Neu.

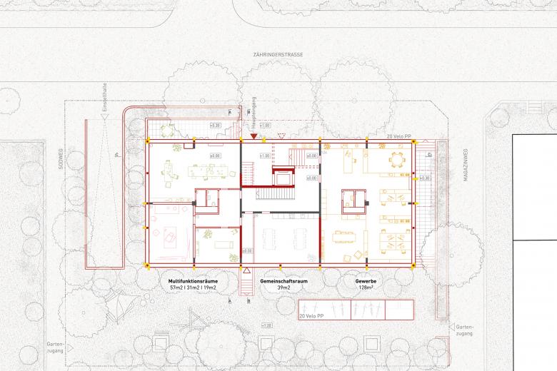
Das Erdgeschoss liegt rund ein Meter unter Strassenniveau. An der Zähringerstrasse und am Magazinweg werden zwei Bereiche mit einem vorgartenähnlichen Grünraum vom Strassenraum abgegrenzt. Diese Bereiche bilden eine geschützte Vorzone zu den im Erdgeschoss gelegenen Arbeitsräumen. Der Hauseingang wird auf Strassenniveau verortet und das öffentliche Leben bis an die Fassade gezogen. Zur Zähringerstrasse entsteht auf zwei Drittel der Fassadenlänge ein Vorplatz, der das Gebäude an der Strasse verankert. Eine neue Verbindung vom Treppenhaus zum Garten und den angrenzenden Gemeinschaftsraum aktivieren den Aussenraum im Südwesten und stärken die Kontakte im Haus.

Visualization © W2H Architekten
Visualization © W2H Architekten
Visualization © W2H Architekten
Visualization © W2H Architekten
Drawing © W2H Architekten
Drawing © W2H Architekten
Drawing © W2H Architekten
Drawing © W2H Architekten
Drawing © W2H Architekten
Drawing © W2H Architekten
Ano
2021
Cliente
Burgergemeinde Bern

Outros projetos por W2H Architekten AG 

Neubau Käsereistrasse 6 in Niederscherli
Niederscherli
Studienauftrag Wohnen im Alter Wylerringstrasse Bern, 1. Rang
Bern, Suíça
Gesamtsanierung MFH Tscharnerstrasse 19-27, Bern
Bern, Suíça
Umbau Wohnhaus Bern
Bern, Suíça
Neubau Garderobengebäude Sportplatz Weissenstein
Bern, Suíça