Tetris House
Tetris House derived from turning very pragmatic parameters into a spatially engaging concept. Multiple programmatic demands (five self contained units, parking space and exterior areas, potential archeological site) have initiated two volumes: L- shaped in plan and section they are spatially interwoven as to produce a range of in – between spaces.
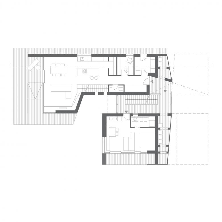
The building is organized into two volumes which divide the “private villa” of the client with ist own indipendent access from the small unites which are rented out.
An open staircase between the two parts provides the access for the small units and the common spaces which are put in the underground level. Each volume cantilevers about five meters in order to provide covered parking. The cantiliver whose structural forces are legible in the wall and the ceiling planes is the result of a series of demands and restrictions from the local government on the one hand and the client on the other:
The building site is considered to sit on a potential archeological spot with remainigs from a roman settlement. In order to avoid exessive expenses for an archeological excavation process we kept the footprint as small as possible. Respecting the local limitation in hight development and wanting to realize the possible allowed size we ended up to propose a cantiliver of the separted volumes.
Local materials such are local larch wood are used throughout the design: in the outside as covering façade material , in the inside the wood is used with a white tint. The outside sloped and shaped façade continues in the inside as a built – in sideboard that turns into a series of steps and plinth beneath the internal stairs.
- Ano
- 2007
- Cliente
- Private
- Design Team
- Eva Castro, Ulla Hell, Holger Kehne, Angelika Mair







